Te koop Huis

Beschrijving van   

Vergelijk realty's

Te koop Huis

Huis Huis Huis Huis Huis Huis Huis Huis Huis Huis Huis Huis Huis Huis Huis Huis Huis Huis Huis Huis
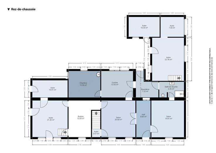
réf 114.Si vous aimez le calme, les beaux espaces. Voici une OPPORTUNITÉ UNIQUE! Cette merveilleuse propriété se situe dans un environnement privilégié, le choix judicieux des matériaux a mis en valeur son côté rural tout en la transformant en une jolie demeure historique. Composition idéale pour famille ou une profession libérale pour ceux souhaitant y vivre et y exercer une activité d'indépendant! La maison se compose au rez-de-chaussée: d'un hall d'entrée, un salon, une cuisine (taque électrique, évier, hotte, four), une salle à manger, une salle de bain (douche, lavabo, WC), un bureau, une buanderie, une chambre au rdc et un local (ancien magasin) possibilité de l'utiliser pour une activité indépendante. Au premier étage: un hall de nuit desservant 3 chambres et un grenier aménageable en 2 chambres supplémentaires. Divers: dépendance arrière (48m2), bonne toiture, 3 poêles aux pellets, installation du chauffage central sans chaudière, alarme, raccordée à l'égout, cave, puits avec groupe hydrophore, installation de 22 panneaux photovoltaïques. Possibilité de gîte! A VISITER SANS TARDER! Faire offre à partir de 140.000,00€. Informations communiquées à titre indicatif et non contractuel. Les propriétaires se réservent le droit d'apprécier la hauteur et la qualité des offres. Nous sommes constamment à la recherche de nouveaux biens pour nos clients en attente, n'hésitez pas à nous contacter au 0499 924 999 pour UNE ESTIMATION GRATUITE SOUS 48H ET FAITE PAR LE PATRON EN PERSO
Type vastgoed Huis
Prijs 140.000
Bewoonbare opp. 185
Aantal slaapkamers 4
Aantal badkamers 1