Te koop Villa

Beschrijving van   

Vergelijk realty's

Te koop Villa

Villa Villa Villa
Renovatieplicht: onbekend
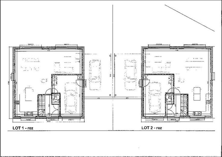
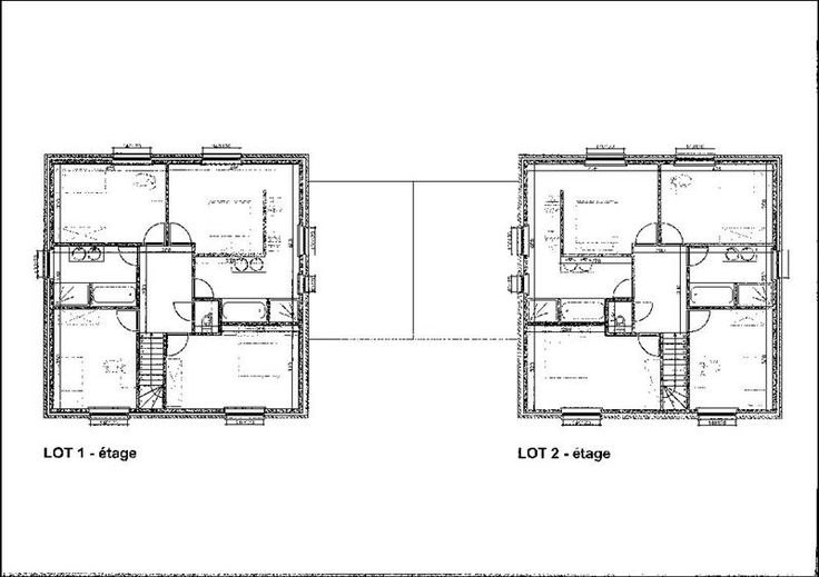
Type vastgoed Huis
Prijs Op aanvraag
Aantal slaapkamers 4
Aantal badkamers 2