Te koop Gerenoveerd appartement met 3 garages

Beschrijving van   

Vergelijk realty's

Te koop Gerenoveerd appartement met 3 garages

Gerenoveerd appartement met 3 garages Gerenoveerd appartement met 3 garages Gerenoveerd appartement met 3 garages Gerenoveerd appartement met 3 garages Gerenoveerd appartement met 3 garages Gerenoveerd appartement met 3 garages Gerenoveerd appartement met 3 garages Gerenoveerd appartement met 3 garages Gerenoveerd appartement met 3 garages Gerenoveerd appartement met 3 garages Gerenoveerd appartement met 3 garages Gerenoveerd appartement met 3 garages Gerenoveerd appartement met 3 garages
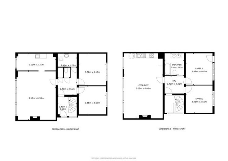
Ben je op zoek naar een investering of appartement voor eigen bewoning? Dit appartement met 3 garages in het hart van Lebbeke biedt je precies dat. Het appartement is gelegen op de eerste verdieping van deze kleine residentie met 2 entiteiten .  Het appartement is prachtig gerenoveerd. De renovatie zorgt voor een moderne en comfortabele leefruimte die zeer goed onderhouden wordt door de huurder. Het appartement heeft 2 slaapkamers, volledig vernieuwde badkamer en een autogarage. Dit appartement is op dit moment verhuurd Extra Faciliteiten: Achter het gebouw zijn er nog 3 autostaanplaatsen die bij het appartement horen. (3x € 10 000,-) Dit kan een aantrekkelijke bron van extra inkomsten (niet verhuurd op dit moment - gemiddelde huurprijs mogelijk € 60,-/maand) vormen gezien de hoge vraag naar parkeerplaatsen in de buurt.  Technische Kenmerken: Het appartement wordt verwarmd op gas, wat zorgt voor een efficiënte en betrouwbare verwarmingsoplossing. Het dak werd vernieuwd in 2021 en overal is dubbele beglazing aangebracht, wat bijdraagt aan de energiezuinigheid en het comfort. Beide woonunits zijn volledig technisch gescheiden van elkaar, wat zorgt voor extra privacy en flexibiliteit. Het EPC van het appartement heeft een label B.  Contacteer ons vandaag nog voor meer informatie of om een bezichtiging te plannen!
Type vastgoed Appartement
Prijs 199.000
Bewoonbare opp. 93
Aantal slaapkamers 2
Aantal badkamers 1