Te huur DEFACQZ 78-80: vanaf 150m²

Beschrijving van   

Vergelijk realty's

Te huur DEFACQZ 78-80: vanaf 150m²

DEFACQZ 78-80: vanaf 150m² DEFACQZ 78-80: vanaf 150m²
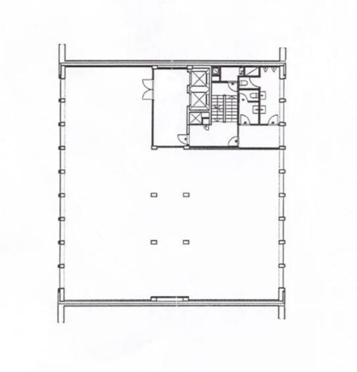
DEFACQZ 78-80: Het gebouw is gelegen tussen de Avenue Louise en de Steenweg op Charleroi en is gemakkelijk bereikbaar, zowel met de wagen als met het openbaar vervoer. Beschikbaarheden vanaf 250m². Niet wat u zoekt? Bezoek onze website of contacteer ons onmiddellijk om een gepersonaliseerde selectie te ontvangen: 02/511.05.60 - office@ceusters.be
Type vastgoed Commercieel
Prijs 4.160
Bewoonbare opp. 312
Gemeubileerd YES