Te koop Rijwoning

Beschrijving van   

Vergelijk realty's

Te koop Rijwoning

Rijwoning Rijwoning Rijwoning Rijwoning Rijwoning Rijwoning Rijwoning Rijwoning Rijwoning Rijwoning Rijwoning Rijwoning Rijwoning Rijwoning Rijwoning Rijwoning Rijwoning Rijwoning Rijwoning Rijwoning Rijwoning Rijwoning Rijwoning Rijwoning Rijwoning
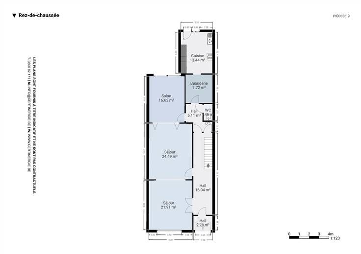
Sorry er is geen nederlandse vertaling beschikbaar. Superbe maison de Maître idéalement située dans le quartier des Vennes, face au pont de Belle-Ile. Sur 350 m² habitables, elle comprend notamment: salon, salle à manger, salon TV, cuisine et arrière-cuisine, 4 chambres, bureaux, 2 salles de bains, grand greniers aménageables. Elle dispose de grandes caves, d'une terrasse et d'un grand jardin (300 m²). Nombreux éléments de caractère (cheminée, boiseries, ...). Châssis récents de qualité. Quelques travaux à prévoir (électricité, cuisine, salle de bains...). Emplacement de parking en option.
Type vastgoed Huis
Prijs 480.000
Bewoonbare opp. 350
Aantal slaapkamers 4
Aantal badkamers 2