Te koop Huis

Beschrijving van   

Vergelijk realty's

Te koop Huis

Huis Huis Huis Huis Huis Huis Huis Huis Huis Huis Huis Huis Huis Huis
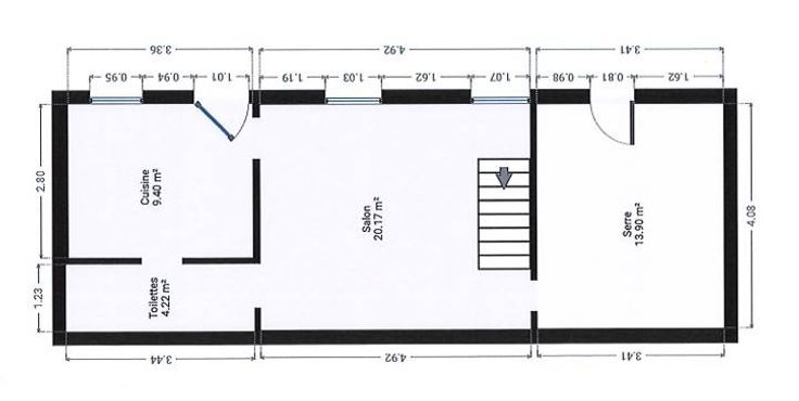
Sorry er is geen nederlandse vertaling beschikbaar. - OPTION - Maison d'habitation à rénover, idéalement située à Profondeville à quelques mètres du bord de Meuse et se composant comme suit: cuisine, living, wc indépendant, remise, 2 chambres, salle de bains, grenier aménageable. Possibilité d'obtenir la réduction des droits d'enregistrement. A visiter sans tarder!
Type vastgoed Huis
Prijs 159.000
Bewoonbare opp. 62
Aantal slaapkamers 2
Aantal badkamers 1