Te koop Knappe bouwgrond voor open bebouwing te Ka...

Beschrijving van   

Vergelijk realty's

Te koop Knappe bouwgrond voor open bebouwing te Kalken (Laarne)

Knappe bouwgrond voor open bebouwing te Kalken (Laarne) Knappe bouwgrond voor open bebouwing te Kalken (Laarne) Knappe bouwgrond voor open bebouwing te Kalken (Laarne) Knappe bouwgrond voor open bebouwing te Kalken (Laarne) Knappe bouwgrond voor open bebouwing te Kalken (Laarne) Knappe bouwgrond voor open bebouwing te Kalken (Laarne) Knappe bouwgrond voor open bebouwing te Kalken (Laarne) Knappe bouwgrond voor open bebouwing te Kalken (Laarne)
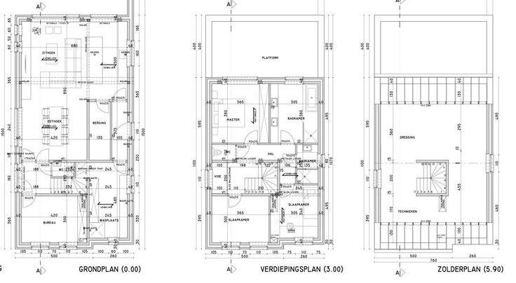
Dit perceel heeft een totale oppervlakte van 11 are en is geschikt voor het oprichten van een open bebouwing. Vergunde bouwplannen alsook verkavelingsvoorschriften zijn voorhanden. Bouwdiepte gelijkvloers max 15 meter en 12 meter op de verdieping. Breedte: 3 meter openlaten tot perceelsgrens. Kroonlijsthoogte maximum 6 meter (zowel plat als een hellend dak zijn mogelijk). Troeven: grond voor een unieke bewoonbare oppervlakte, bouwstijl vrij te kiezen goede bereikbaarheid, … Voor meer info en/of een bezoek, contacteer ons via niels@immotijl.be of 0474 12 56 41
Type vastgoed Grond
Prijs 269.000