Te koop Huis

Beschrijving van   

Vergelijk realty's

Te koop Huis

Huis Huis Huis Huis Huis Huis Huis Huis Huis Huis Huis
*** VENDUE ***
Type vastgoed Huis
Prijs Op aanvraag
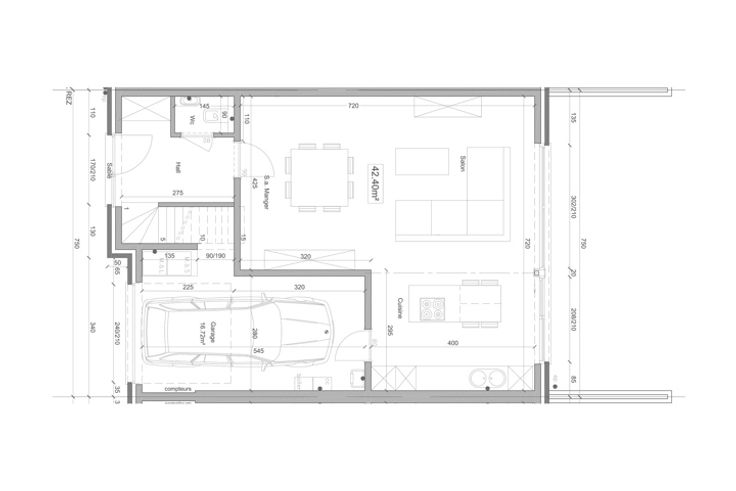
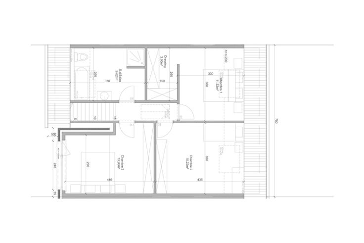
Bewoonbare opp. 145
Aantal slaapkamers 3
Aantal badkamers 1