Te koop Ruime nieuwe woning -BTW tarief van 6% i.p...

Beschrijving van   

Vergelijk realty's

Te koop Ruime nieuwe woning -BTW tarief van 6% i.p.v. 21% !

Ruime nieuwe woning -BTW tarief van 6% i.p.v. 21% ! Ruime nieuwe woning -BTW tarief van 6% i.p.v. 21% ! Ruime nieuwe woning -BTW tarief van 6% i.p.v. 21% ! Ruime nieuwe woning -BTW tarief van 6% i.p.v. 21% !
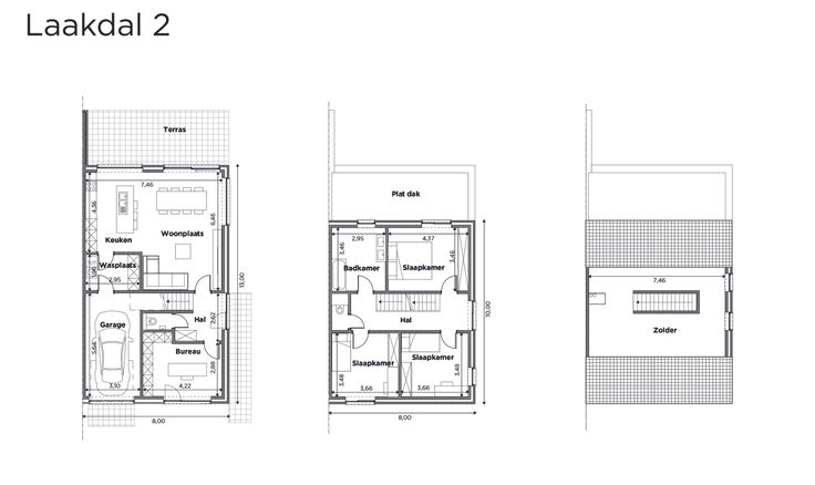
In Vorst (Laakdal) bouwt Blavier 7 ruime woningen in een mooie hedendaagse architectuur. Rustig gelegen, kindvriendelijk en op wandelafstand van het centrum. Lot 1 is reeds verkocht en de werven van lot 1 en 2 zijn in afwerkingsfase (keukens reeds geplaatst). Lot 2 staat nog te koop. Voor de snelle beslisser is het het BTW tarief van 6% i.p.v. 21% op het constructiegedeelte van toepassing mits u voldoet aan de voorwaarden. Met een bewoonbare oppervlakte van +/- 230 m² heeft deze woning op lot 2 alles wat een gezin verwacht. Er wordt een vaste trap voorzien naar de tweede verdieping, waar een mogelijkheid bestaat voor bv. 2 extra slaapkamers of hobbyruimte. Er is een lucht-water warmtepomp met vloerverwarming voorzien, alsook ventilatie, zonnepanelen en volledig uitgeruste keuken. De voorbereidingswerken van terras en de oprit zijn inbegrepen alsook hagen en gazonaanleg. Een gedeelte van de woning is ook reeds voorgeschilderd voorzien. Meer info over de achterliggende loten 3 t.e.m. 7 zijn beschikbaar in een aparte advertentie. Extra info beschikbaar of maak een afspraak voor een bezoek ter plaatse! GSM 0473/50.04.12.
Type vastgoed Huis
Prijs 465.000
Bewoonbare opp. 230
Aantal slaapkamers 3
Aantal badkamers 1