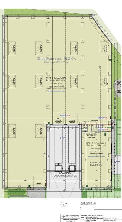
Te koop Terrein van 4.122 m² te koop vlakbij de af...

Beschrijving van   

Vergelijk realty's

Te koop Terrein van 4.122 m² te koop vlakbij de afrit Ternat ( E40)

Terrein van 4.122 m² te koop vlakbij de afrit Ternat ( E40) Terrein van 4.122 m² te koop vlakbij de afrit Ternat ( E40)
Vergund en bouwrijp industrieterrein te koop op toplocatie vlakbij de E40. Het terrein ligt op 300 m van de op- en afrit 20, E40. Aarzel niet ons te contacteren voor bijkomende info.  Structura.biz: 02/462.32.00   Renovatieplicht: onbekend
Type vastgoed Grond
Prijs 1.650.000