Te koop Nieuwbouw - Doornzonappartement gelijkvloers

Beschrijving van   

Vergelijk realty's

Te koop Nieuwbouw - Doornzonappartement gelijkvloers

Nieuwbouw - Doornzonappartement gelijkvloers Nieuwbouw - Doornzonappartement gelijkvloers Nieuwbouw - Doornzonappartement gelijkvloers Nieuwbouw - Doornzonappartement gelijkvloers Nieuwbouw - Doornzonappartement gelijkvloers Nieuwbouw - Doornzonappartement gelijkvloers Nieuwbouw - Doornzonappartement gelijkvloers
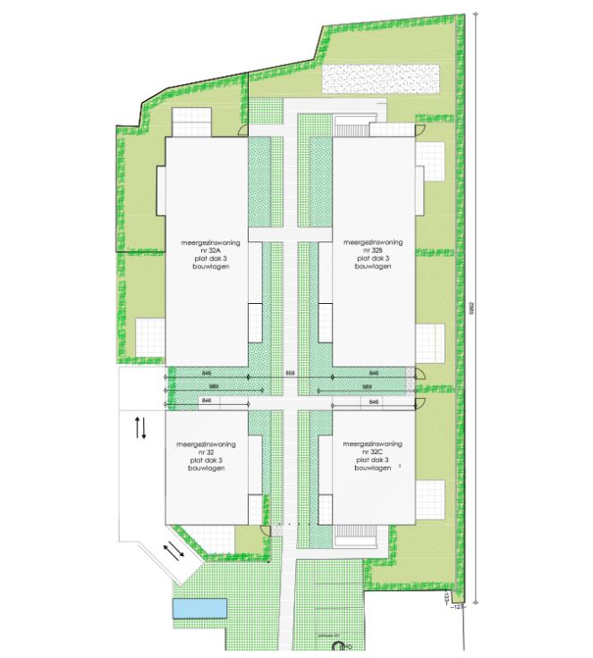
Met het gloednieuwe en tijdloze project Residenties DURMEDIJK wil Qubo het woonaanbod in het hartje van Hamme aanvullen met 18 appartementen in 4 door groen gescheiden eenheden. Het nieuwe appartementenproject heeft een kleinschalig karakter en biedt een interessante en geslaagde combinatie van comfortabel wonen met een elegante en doordachte architectuur! Appartement gelijkvloers Uw appartement beschikt over een praktische inkomhal, apart toilet, eet-en zithoek, keuken, berging en 2 ruime slaapkamers. Daarnaast heeft u een eigen privétuin van 31,5 m². Planaanpassingen op uw maat steeds mogelijk (beperkte mate). Contacteer ons vrijblijvend voor meer info en ontdek de mogelijkheden voor een afwerking op maat. Bij Qubo garanderen we steeds een energiezuinige woonst. Er wordt gewerkt met solide en duurzame materialen van hoge kwaliteit om te voldoen aan de huidige energieprestatieregelgeving (EPB). Uw appartement heeft een E-peil kleiner of gelijk aan 20. Hierdoor geniet u tevens een korting van 50% op de onroerende voorheffing! Prijs appartement 32/1 inclusief ondergrondse garage en extra kelderberging: € 310.000,00 (excl. kosten) Betrouwbare bouwpartner Qubo is een familiebedrijf met méér dan 30 jaar ervaring in het bouwen van kwaliteitsvolle woningen. Vakmanschap is één van onze fundamentele pijlers. We stellen u dan ook graag dit nieuwe appartementenproject voor tijdens een persoonlijk gesprek. Meer info: www.durmedijk.be
Type vastgoed Appartement
Prijs Op aanvraag
Bewoonbare opp. 97
Aantal slaapkamers 2
Aantal badkamers 1