Te koop Huis

Beschrijving van   

Vergelijk realty's

Te koop Huis

Huis Huis Huis Huis Huis Huis Huis Huis Huis Huis Huis Huis Huis Huis Huis Huis Huis Huis Huis Huis
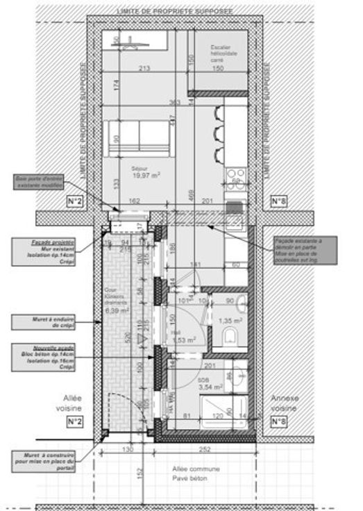
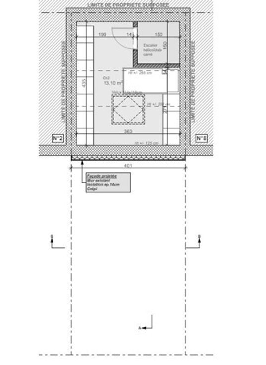
Chênée, 5 sur 5 Immobilier vous propose une maison au calme et proche de toutes les commodités. Elle est à rénover en une agréable première habitation ou pour un investissement en habitation principale ou colocation. Un permis a été récemment obtenu pour y réaliser une habitation de 2 CH. ON AIME : L’emplacement calme La proximité de toutes les commodités Le potentiel Le permis d’urbanisme obtenu COTE PRATIQUE : Proximité du centre-ville de Chênée Bus 31 à 85 m Gare de Chênée à 650 m Commerces (Colruyt) à 600 m Ecoles à 120 m Cette maison avec cour offre un potentiel intéressant pour la création d’une maison 2 CH avec cour. L’ensemble est à rénover et a bénéficier d’un remplacement de la toiture qui est désormais neuve et isolée. Un permis d’urbanisme a été récemment obtenu pour créer au rez-de-chaussée un hall avec WC indépendant, une salle de douche, une pièce de vie qui pourra accueillir la cuisine avec coin repas et le salon. Au premier et second étages, 2 chambres. Une cave et une cour viennent parfaire l'ensemble. Pour un premier achat nous sommes occupé à obtenir un devis permettant de vous faire une idée des coûts des transformations. Travaux éligibles aux primes Région Wallonne. Découvrez sans tarder cette belle opportunité. PEB avant travaux et remplacement de la toiture - classe G : 959 kWh/m².an, Rapport N° 20220704008655 Revenu Cadastral Net : 111,00 € - possibilité de frais réduits. Renseignements ou visites au 0477/511.254 ou info@5sur5.eu
Type vastgoed Huis
Prijs 69.000
Bewoonbare opp. 50
Aantal slaapkamers 2