Te koop Te renoveren woning

Beschrijving van   

Vergelijk realty's

Te koop Te renoveren woning

Te renoveren woning Te renoveren woning Te renoveren woning Te renoveren woning Te renoveren woning Te renoveren woning Te renoveren woning Te renoveren woning Te renoveren woning Te renoveren woning Te renoveren woning Te renoveren woning Te renoveren woning Te renoveren woning Te renoveren woning
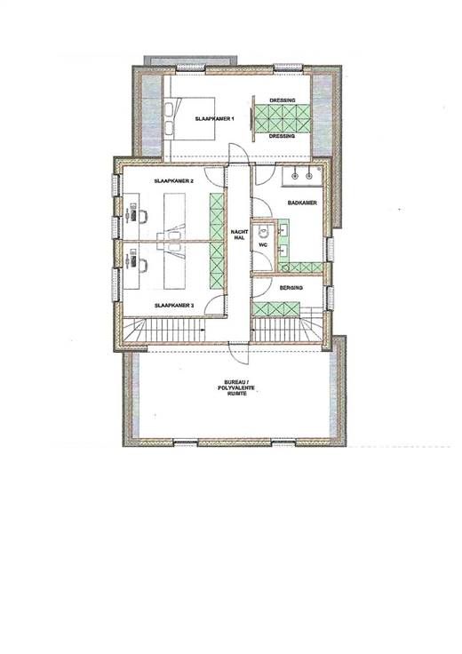
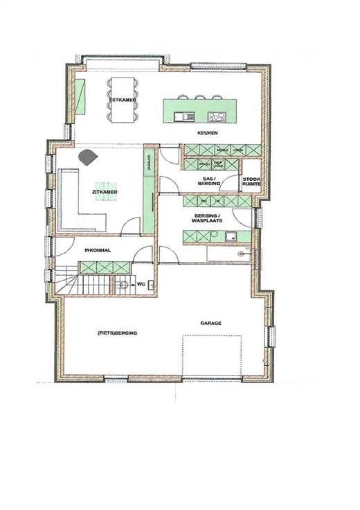
Te renoveren eengezinswoning Welkom op de Lommelsebaan 66 te Hechtel-Eksel! Deze woning is gelegen op een uitstekende locatie met dichtbij het Nationaal Park Bosland en vlakbij voorzieningen zoals winkels, horecazaken en busverbindingen. De omliggende gemeentes waaronder Peer, Leopoldsburg en Lommel zijn vlot bereikbaar. De woning heeft een bruikbare oppervlakte van 230 m2 en een grondoppervlakte van 16 A 48 CA. De woning is volledig gestript en in te richten naar wens. Er zijn plannen aanwezig van de indeling, opgemaakt ter illustratie door de architect. Er is de mogelijkheid om de woning door een totaalaanemer te renoveren (details en prijs nader te bespreken). De indeling: kom binnen in de inkomhal met een open trap naar het eerste verdiep, links bevindt zich de woonkamer en eetkamer, rechts bevindt zich de keuken. Verder kan er een wasruimte en terras voorzien worden. Op het verdiep bevinden zich een grote nachthal, 3 ruime slaapkamers en een badkamer. Wenst u meer informatie of een bezichtiging? Contacteer ons op het nummer +32 (0) 89 76 70 16.
Type vastgoed Huis
Prijs 350.000
Bewoonbare opp. 230
Aantal slaapkamers 3
Aantal badkamers 1