Te koop Huis

Beschrijving van   

Vergelijk realty's

Te koop Huis

Huis Huis Huis Huis Huis Huis Huis Huis Huis Huis Huis Huis
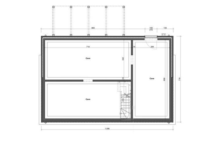
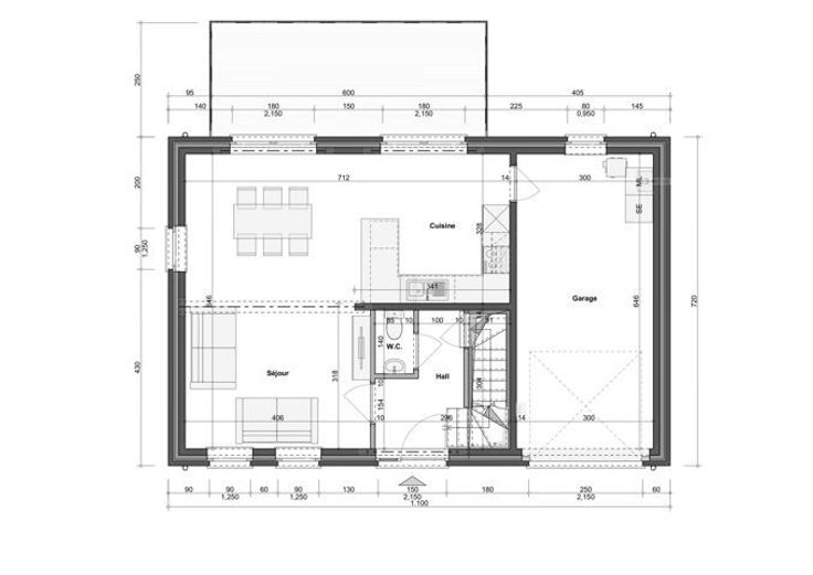
Bénéficiant d'une agréable situation calme sur les hauteurs de Namur, à proximité de toutes commodités et de la Citadelle, voici un projet de construction d'une villa 4 façades peu énergivore sur un terrain de 28 ares 38. Son rez-de-chaussée se compose d'un hall d'entrée avec WC, living carrelé avec cuisine américaine à équiper de 36m² - Possibilité d'ajouter une terrasse au niveau du rez moyennant supplément - et d'un garage avec coin buanderie et porte sectionnelle. Le hall de nuit/bureau du 1er étage donne accès à trois chambres (17m² avec dressing et 2 x 14m²) ainsi qu'une salle de douche carrelée (douche à l'italienne, meuble-évier et WC). Le sous-sol de 65m² situé au niveau du jardin est aisément aménageable et permettrait d'accueillir un espace pour profession libérale ou indépendant. Châssis double vitrage en PVC. Chauffage central au gaz propane. PEB de classe B (très proche du A). Prix hors TVA et frais de notaire comprenant l'acquisition du terrain et la construction (gros-oeuvre, châssis, toiture, plafonnage, carrelages du rez, portes intérieures et escalier, salle d'eau et 2 WC, électricité, 6 panneaux photovoltaïques, chauffage, porte de garage sectionnelle). Prévoir un budget supplémentaire pour l'installation d'une mini-station d'épuration, d'une citerne d'eau de pluie et les aménagements extérieurs. Plans et descriptif des travaux disponibles sur demande à l'agence. Délai de construction de +/- 1 an. Document, prix et photos informatifs et non contractuels.
Type vastgoed Huis
Prijs 384.500
Bewoonbare opp. 160
Aantal slaapkamers 3
Aantal badkamers 1