Te koop Bel-etage

Beschrijving van   

Vergelijk realty's

Te koop Bel-etage

Bel-etage Bel-etage Bel-etage Bel-etage Bel-etage Bel-etage Bel-etage Bel-etage Bel-etage
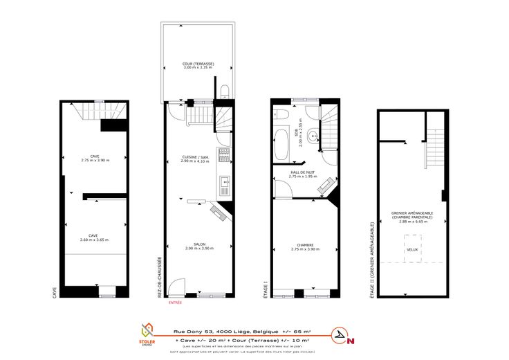
BIEN VENDU Composition: Petite maison ouvrière, à rénover, elle se compose d'un salon, une cuisine et une cour au rez-de-chaussée. Au premier étage, vous trouverez une chambre et une salle de bain, tandis que le dernier étage comprend une deuxième chambre. Particularité: La maison est située dans une rue calme, au sein d'un quartier en pleine évolution et proche de toutes commodités telles que les transports en commun, le centre-ville, les commerces et les écoles accessibles à pied. Ce bien offre la possibilité de frais d'enregistrement réduits, avec un revenu cadastral de 223€.
Type vastgoed Huis
Prijs Op aanvraag
Bewoonbare opp. 65
Aantal slaapkamers 2
Aantal badkamers 1