Te koop Casco woning met tuin en dakterassen | 6% ...

Beschrijving van   

Vergelijk realty's

Te koop Casco woning met tuin en dakterassen | 6% BTW mogelijk.

Casco woning met tuin en dakterassen | 6% BTW mogelijk. Casco woning met tuin en dakterassen | 6% BTW mogelijk. Casco woning met tuin en dakterassen | 6% BTW mogelijk. Casco woning met tuin en dakterassen | 6% BTW mogelijk. Casco woning met tuin en dakterassen | 6% BTW mogelijk. Casco woning met tuin en dakterassen | 6% BTW mogelijk. Casco woning met tuin en dakterassen | 6% BTW mogelijk.
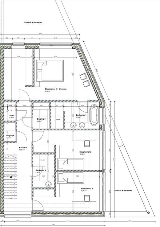
Deze centraal gelegen casco woning beschikt over een bewoonbare oppervlakte van 200m² en is gelegen op een perceel van 2a 57ca. Winkels, scholen, het openbaar vervoer en belangrijke verbindingswegen zijn vlakbij gelegen. De oplevering zal gebeuren volgens het water- en winddicht principe zijnde afgewerkte gevels, dak inclusief isolatie en buitenschrijnwerk. De koper dient de woning nog verder af te werken naar eigen smaak en budget. De indeling is als volgt: op het gelijkvloers bevindt zich een inkomhal (11m²) met vestiairemogelijkheid, een gastentoilet (1 x 1,8m), een lichtrijke leefruimte met een open keuken (totale opp.: 65 m²) met toegang tot een mooie zuidwest georiënteerde tuin. Verder is er een berging (2,2 x 2,7m), een fietsenberging (3 x 2,7m) en een carport (5,5 x 5,2m). Op de eerste verdieping leidt de nachthal naar een toilet (1 x 1,4m), 3 slaapkamers (15,50m²; 12,82m²; 12,79m²) waarvan één met ruime dressing (8,5m²), 2 badkamers (3,7 x 2m; 1,5 x 2,5m), twee bergingen (1,3 x 2m; 1,5 x 1m) en een dakterras (23,2m²) . Op de tweede verdieping leidt de vaste trap naar een polyvalente ruimte of extra slaapkamer (33m²) met dakterras (25m²). Aankoop aan 6% BTW mogelijk tot 31 december 2024. Contacteer ons gerust bij interesse. 015 711 000 - info@clavisvastgoed.be
Type vastgoed Huis
Prijs 451.200
Bewoonbare opp. 200
Aantal slaapkamers 3
Aantal badkamers 2