Te koop Nieuw te bouwen alleenstaande woning met v...

Beschrijving van   

Vergelijk realty's

Te koop Nieuw te bouwen alleenstaande woning met vrije keuze van arc

Nieuw te bouwen alleenstaande woning met vrije keuze van arc Nieuw te bouwen alleenstaande woning met vrije keuze van arc Nieuw te bouwen alleenstaande woning met vrije keuze van arc Nieuw te bouwen alleenstaande woning met vrije keuze van arc
Een voorbeeldwoning dat volledig aan te passen is naar wens én budget? Dat is wat wij bij Your Home doen. Met onze kennis van de nieuwste, duurzame materialen leiden we jou naar optimaal wooncomfort. Zo bouwen wij samen aan jouw thuis. Zie je jezelf al staan voor jouw nieuwe woning of wens je meer informatie? Neem dan contact met ons op. Wij helpen je graag verder. Mail naar aanvraag@yourhome.be of bel 056 755 788 Tip: Bezoek onze Kijkwoning na afspraak (zie www.yourhome.be/kijkwoning)
Type vastgoed Huis
Prijs 465.966
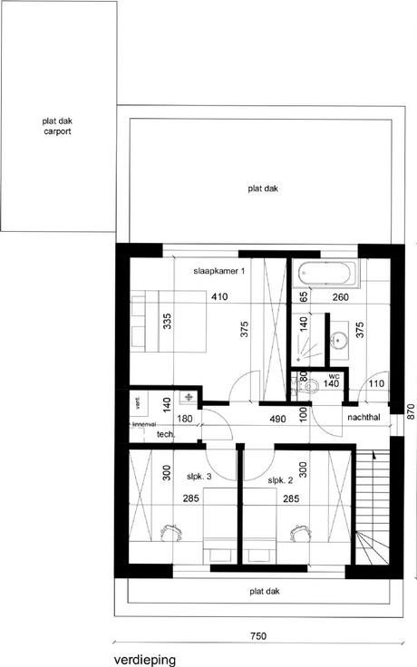
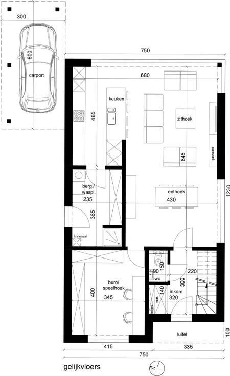
Bewoonbare opp. 161
Aantal slaapkamers 3