Te koop Bouwgrond 835m²

Beschrijving van   

Vergelijk realty's

Te koop Bouwgrond 835m²

Bouwgrond 835m²
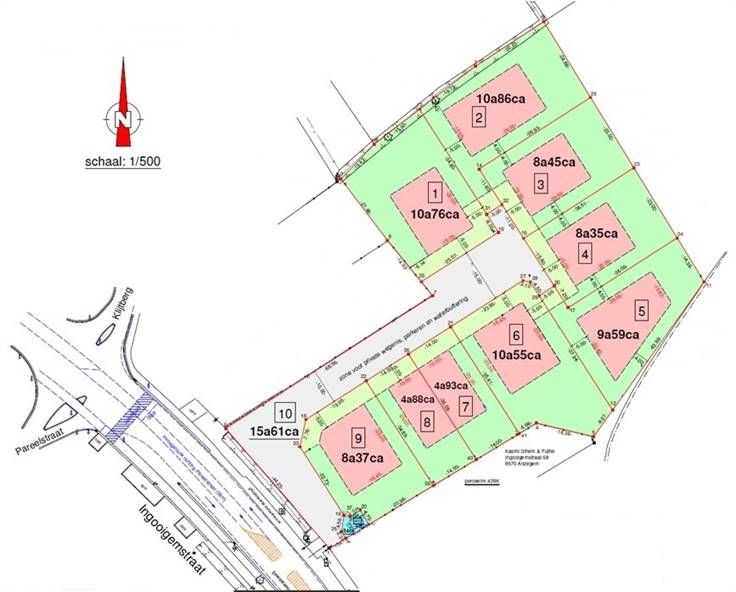
Bouwgrond van 835m². De grond ligt in een nieuwe verkaveling in Ingooigem met een vlotte bereikbaarheid. Bel Immo Van Parijs voor meer informatie: 056 29 30 30.
Type vastgoed Grond
Prijs 220.000