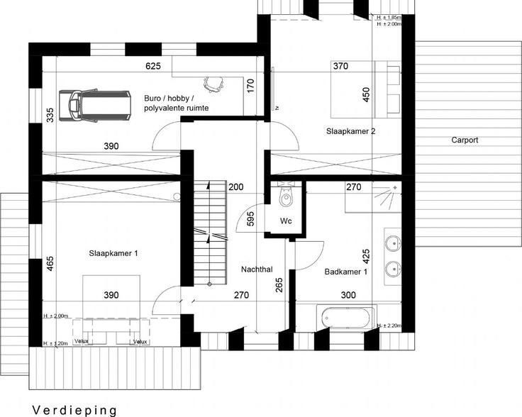
Te koop Nieuw te bouwen alleenstaande woning met v...

Beschrijving van   

Vergelijk realty's

Te koop Nieuw te bouwen alleenstaande woning met vrije keuze van arc

Nieuw te bouwen alleenstaande woning met vrije keuze van arc Nieuw te bouwen alleenstaande woning met vrije keuze van arc Nieuw te bouwen alleenstaande woning met vrije keuze van arc Nieuw te bouwen alleenstaande woning met vrije keuze van arc
Een bouwcoordinator die je bouwgrond voorstelt én je de hand reikt met voorbeeldwoningen? Welkom bij Your Home. Wij luisteren naar jouw bouwwensen en houden rekening met jouw budget. Ook met de keuze in zonnepanelen, ventilatiesysteem of duurzame materialen staan wij je bij met raad en daad. Zo bouwen we samen aan jouw thuis. Meer informatie over de voorgestelde bouwgronden en onze woningen? Neem vrijblijvend contact met ons op. Wij helpen je graag verder. Mail naar aanvraag@yourhome.be of bel 056 755 788 Tip: Bezoek onze Kijkwoning na afspraak (zie www.yourhome.be/kijkwoning)
Type vastgoed Huis
Prijs 659.572
Bewoonbare opp. 249
Aantal slaapkamers 4