Te koop Zonnebeke_Berten Pilstraat_Lot 1

Beschrijving van   

Vergelijk realty's

Te koop Zonnebeke_Berten Pilstraat_Lot 1

Zonnebeke_Berten Pilstraat_Lot 1 Zonnebeke_Berten Pilstraat_Lot 1 Zonnebeke_Berten Pilstraat_Lot 1 Zonnebeke_Berten Pilstraat_Lot 1 Zonnebeke_Berten Pilstraat_Lot 1 Zonnebeke_Berten Pilstraat_Lot 1 Zonnebeke_Berten Pilstraat_Lot 1
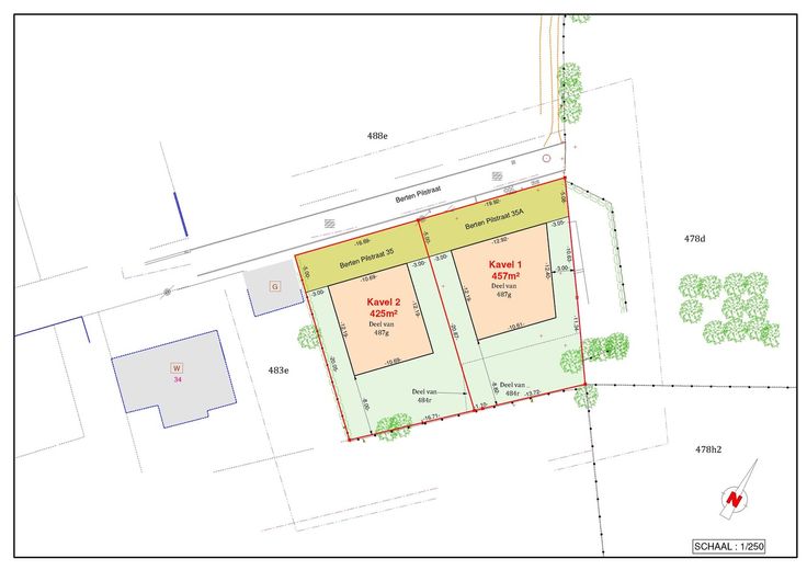
NIEUW TE KOOP  In de Berten Pilstraat in Zonnebeke, op het einde van een doodlopend gedeelte, bouwen we binnenkort 2 nieuwbouwwoningen. Lot 1 in dit project bieden we aan met onze Bouwen Op Maat formule. Hierbij heeft u als koper de vrije keuze in ontwerp met onze architect. Deze bouwgrond bestaat uit een gedeelte bouwgrond van 457 m² met ruime bouwvoorschriften en een naastgelegen weide van maar liefst 3300 m². In totaliteit een oppervlakte van 3757 m²! Ideaal voor mensen die graag veel open ruimte wensen of bijvoorbeeld een paard bij huis willen hebben. Pluspunten: Rustige en landelijke ligging met open zicht; Ontwerp en afwerking naar eigen smaak; Ideaal voor mensen met dieren of groene vingers; ... Interesse om met ons op deze grond te bouwen? Contacteer ons voor meer informatie.   Renovatieplicht: onbekend
Type vastgoed Grond
Prijs 285.000