Te koop Bouwgrond

Beschrijving van   

Vergelijk realty's

Te koop Bouwgrond

Bouwgrond Bouwgrond Bouwgrond Bouwgrond Bouwgrond Bouwgrond Bouwgrond Bouwgrond Bouwgrond Bouwgrond Bouwgrond Bouwgrond Bouwgrond Bouwgrond
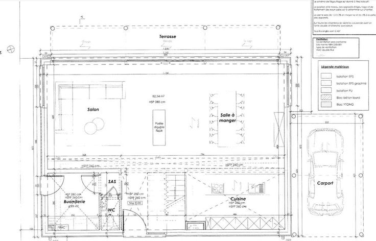
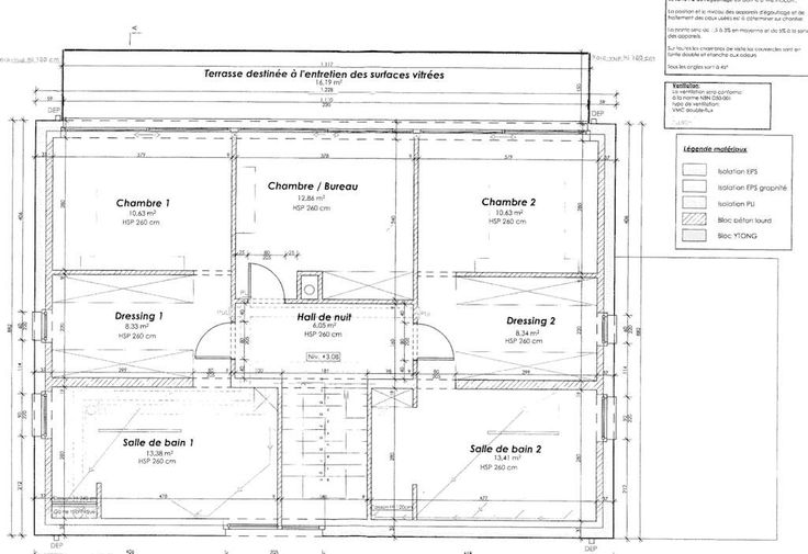
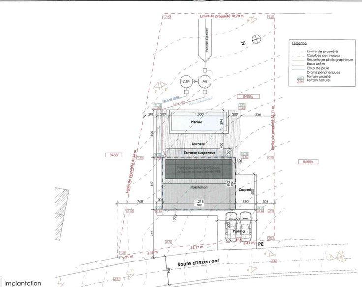
Idéalement située sur les hauteurs d’Hastière et au coeur de la vallée de la Meuse dans un environnement campagnard et résidentiel de qualité à proximités de toutes commodités et des axes rapides, Immo-Far vous présente une superbe parcelle à bâtir d’une contenance de 8 ares et 75 centiares. Cet emplacement bien orienté avec une vue hyper dégagée est vendu avec son permis d’urbanisme valable jusqu’en 2028 pour la construction d’une villa 4 façades avec piscine et carport. Cette parcelle n’est pas située dans un lotissement et est viabilisée en matière d’eau et d’électricité, sans obligation de construction et libre de constructeur. Dossier complet, copie du permis d’urbanisme et prescriptions urbanistiques sur simple demande. Ne tardez pas, une visite s’impose.. Infos et visites : 0486/09 15 89 (7j/7j)
Type vastgoed Grond
Prijs 64.000