Te koop Bouwgrond

Beschrijving van   

Vergelijk realty's

Te koop Bouwgrond

Bouwgrond Bouwgrond Bouwgrond Bouwgrond Bouwgrond Bouwgrond Bouwgrond Bouwgrond Bouwgrond Bouwgrond Bouwgrond Bouwgrond
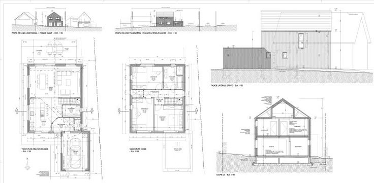
Belle parcelle de terrain plat d'envirion 568 m² avec permis d'urbanisme pour la construction d'une habitation bien située dans un endroit calme à faible passage. Plans de cette habitation disponibles sur demande à info@waucomont.be. Largeur façade à rue: +/- 19,86 m. Orientation Nord à l'arrière du terrain. Libre de constructeur! Cette parcelle est située à 4690 Glons, route de Paifve (côté gauche face au n°18). Référence cadastrale: Bassenge, 4ème division, Glons, section C, n°583/02D2P0000. Cette parcelle ne fait pas partie d'un lotissement, il n'y a donc pas de prescriptions urbanistiques propres à un lotissement; il faudra toutefois respecter les prescriptions en vigueur (communales, régionales, ...). Les frais liés à la viabilisationet aux impétrants ainsi que l'accés au terrain (électricité, eau, ...) sont à charge des acquéreurs. A ne pas manquer! Informations données à titre indicatif et non contractuelles. www.waucomont.be
Type vastgoed Grond
Prijs 85.000