Te koop Nieuwbouwvilla nabij centrum Zedelgem

Beschrijving van   

Vergelijk realty's

Te koop Nieuwbouwvilla nabij centrum Zedelgem

Nieuwbouwvilla nabij centrum Zedelgem Nieuwbouwvilla nabij centrum Zedelgem Nieuwbouwvilla nabij centrum Zedelgem Nieuwbouwvilla nabij centrum Zedelgem Nieuwbouwvilla nabij centrum Zedelgem
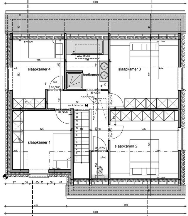
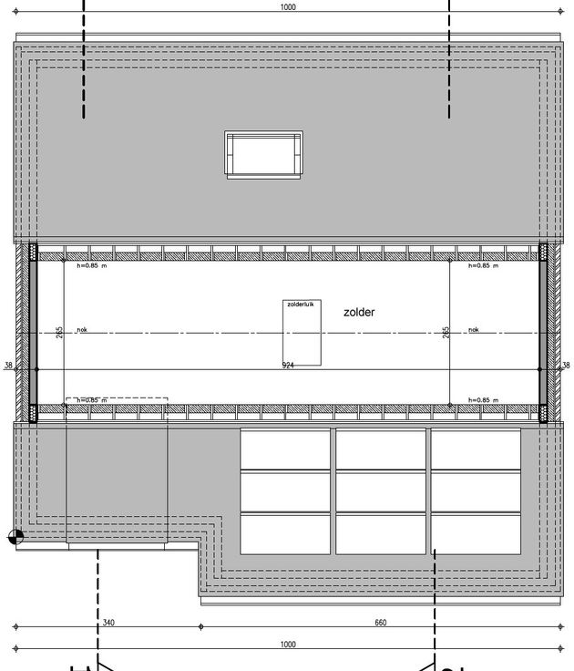
Deze VRIJSTAANDE & ENERGIEZUINIGE  NIEUWBOUWVILLA is gelegen op een UITERST UNIEKE LIGGING dit op wandelafstand van het bruisende dorpscentrum en het sportcentrum De Groene Meersen! Deze CHARMANT OGENDE villa wordt gebouwd op een MOOI PERCEEL van 425m²! Op het gelijkvloerse is er de inkomhal met afzonderlijk gastentoilet, lichtrijke en zeer ruime woonkamer met zit- en eetplaats, open ingerichte leefkeuken, praktische berging en inpandige GARAGE. De verdieping omvat de nachthal, 4 slaapkamers en een ingerichte badkamer. Via een zolderluik kan u de bergzolder bereiken. Deze woning wordt voorzien van vloerverwarming op glvl + verdieping, alsook zonnepanelen! Verkoop onder BTW-stelsel. E-peil 30. Renovatieplicht: onbekend
Type vastgoed Huis
Prijs 459.000
Aantal slaapkamers 4
Aantal badkamers 1