Te koop Te renoveren hoeve

Beschrijving van   

Vergelijk realty's

Te koop Te renoveren hoeve

Te renoveren hoeve Te renoveren hoeve Te renoveren hoeve Te renoveren hoeve Te renoveren hoeve Te renoveren hoeve Te renoveren hoeve Te renoveren hoeve Te renoveren hoeve Te renoveren hoeve Te renoveren hoeve Te renoveren hoeve Te renoveren hoeve Te renoveren hoeve Te renoveren hoeve Te renoveren hoeve
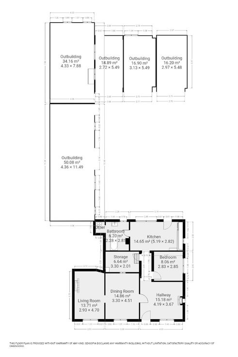
Ben je op zoek naar een charmante hoeve die je volledig naar eigen wensen kunt renoveren? Dan is deze woning zeker iets voor jou! Het mooie landelijke karakter en de ideale ligging zijn slechts enkele troeven van deze mooie woning. Indeling: Gelijkvloers: Bij binnenkomst kom je in de leefruimte (15m²), die direct in verbinding staat met zowel de eetkamer (15 m²) als een tweede leefruimte (14m²). Via de hal bereik je de slaapkamer (8m²) en de berging (6 m²). Keuken: De ruime keuken (14m²) kijkt uit over de koer en sluit aan op de badkamer (6 m²). Extra ruimtes: De hoeve beschikt bovendien over meer dan 95 m² aan stallingen en heeft twee garages van elk 16 m². Bij deze verkoopis er een renovatieverplichting van toepassing, de koper heeft 5 jaar de tijd om deze woning energetisch te renoveren tot een energielabel D of beter. Interesse in deze woning? Neem nu contact op met je ERA-makelaar!
Type vastgoed Huis
Prijs 199.000
Bewoonbare opp. 130
Aantal slaapkamers 1
Aantal badkamers 1