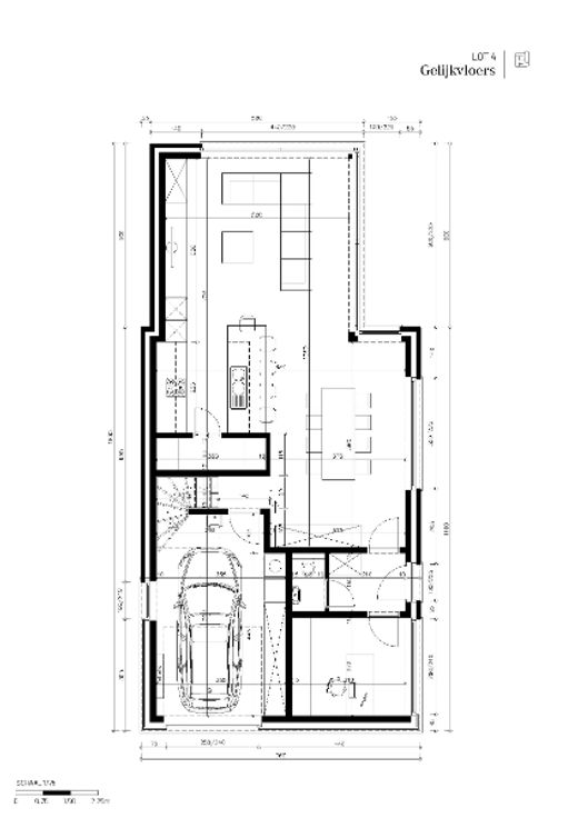
In opdracht van GhimmoHuysman bouwt Huysman Bouw deze luxueuze villa op een zuidoost georiënteerd perceel van 876m2. De woning is gelegen in St-Goriks met zicht op de Zwalmvallei. De villa wordt gekenmerkt door een strak moderne en minimalistische architectuur. De uitgekiende materialen zorgen voor een luxueuze én tijdloze uitstraling. Dankzij een slimme indeling geniet je maximaal van alle ruimtes. De grote glaspartijen bieden een perfecte connectie met de zuidoost georiënteerde tuin. Op het gelijkvloers is er een inkomhal met gastentoilet, een lichtrijke leefruimte met open keuken, een berging en een garage met was/bergplaats. Op de eerste verdieping bevinden zich 3 slaapkamers waarvan 1 master bedroom met dressing, een grote badkamer met bad en douche, een technische ruimte en een berging. Onze specialisten begeleiden je op weg naar je instapklaar afgewerkte villa. Je villa wordt op maat afgewerkt: honderd procent jij! A.d.h.v het uitgebreide lastenboek kies je zelf alle interieurafwerking onder begeleiding van onze interieurvormgevers. Je zorgt dus zelf voor de finishing touch en kiest a.d.h.v. de ruime budgetten de technieken, keuken, vloeren, badkamer,… . Standaard is de woning sowieso voorzien van een luxueuze afwerking met energiezuinige technieken (vloerverwarming, warmtepomp, ventilatie D,...). Benieuwd naar het lastenboek? Contacteer onze bouwadviseur Ewout op 0497 588 888 of mail naar contact@huysmanbouw.be
Renovatieplicht: onbekend