Te koop Oedelem te koop - PERCEEL BOUWGROND 1300m...

Beschrijving van   

Vergelijk realty's

Te koop Oedelem te koop - PERCEEL BOUWGROND 1300m² en WEILAND 15...

Oedelem te koop - PERCEEL BOUWGROND  1300m² en WEILAND 15... Oedelem te koop - PERCEEL BOUWGROND  1300m² en WEILAND 15... Oedelem te koop - PERCEEL BOUWGROND  1300m² en WEILAND 15... Oedelem te koop - PERCEEL BOUWGROND  1300m² en WEILAND 15...
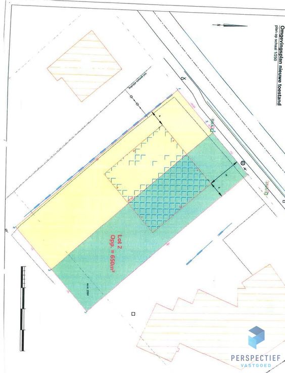
Oedelem te koop - PERCEEL BOUWGROND 1300m² en WEILAND 15.141m² (weiland niet incl. de vraagprijs). Rechthoekig perceel bouwgrond met een oppervlakte van 1300 m². Het perceel heeft een landelijk open zicht achteraan en is geschikt voor halfopen bebouwing. Landelijk gelegen in het rustige Oostveld en een vlotte verbinding richting E40, Brugge en de Kust. De opsplitsing en omgevingsvergunning voor het verkavelen van de grond is in behandeling. Er worden twee naastliggende percelen van elk 650m² te koop aangeboden (lot 1 en lot 2) eveneens is er mogelijkheid om een achterliggend stuk weiland ( Lot 3) aan te kopen met een opp. van 15.141m² , waardoor er tevens de mogelijkheid bestaat om de drie percelen als één geheel aan te kopen Aanvraag nieuwe verkaveling: - LOT 1: 650m²     175.000 EUR - LOT 2: 650m²     175.000 EUR  - LOT 3: 15.141m²   151.410 EUR (mogelijkheid tot aankoop achterliggend stuk weiland Lot 3) De opsplitsing voor het verkavelen van de grond is in behandeling. Contacteer ons voor de bouwvoorschriften en meer info 050 550 750 of info@perspectiefvastgoed.be   Renovatieplicht: onbekend
Type vastgoed Grond
Prijs 350.000