Te koop Bouwgrond

Beschrijving van   

Vergelijk realty's

Te koop Bouwgrond

Bouwgrond Bouwgrond Bouwgrond Bouwgrond Bouwgrond Bouwgrond Bouwgrond Bouwgrond Bouwgrond Bouwgrond Bouwgrond Bouwgrond Bouwgrond Bouwgrond Bouwgrond Bouwgrond Bouwgrond
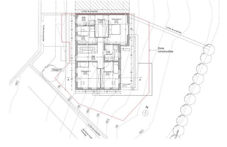
La société HOMES IMMO a le plaisir de vous proposer cette nouvelle construction (à réaliser) moderne vendue en gros oeuvre fermé (250m²), elle est située sur les hauteurs d'Ensival (lotissement très recherché) et proche de toutes les commodités (école, bus, commerce, autoroute).  Permis octroyé pour la construction d'une maison 3 façades. Elle se compose (RDC) au niveaux des espaces: d'un hall d'entrée, une toilette, salon, salle à manger, cuisine, réserve, grand garage. A l'étage vous trouverez comme espaces: un hall de nuit distribuant 4 chambres à coucher et deux salles de bains, un dressing. Au -1: 3 caves. Belle parcelle de 544m² situé dans un lotissement très calme. Impétrants en attente devant la parcelle. DECLARATION INITIALE PEB: ESPC 71 (PEB: A) - Surface plancher 253m² - volume protégé 759,21m² - Niveau K 35 - dossier RWPEB - 151687 Bien soumis à 21% TVA Cahier des charges disponible sur demande: info@homes-immo.be - 0494 60 56 82 Ne tardez pas à nous contacter !
Type vastgoed Grond
Prijs 299.000