Te koop Huis

Beschrijving van   

Vergelijk realty's

Te koop Huis

Huis Huis Huis Huis Huis Huis Huis Huis Huis Huis Huis Huis Huis Huis Huis Huis Huis
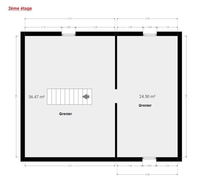
PACIMMO "Un service tout compris" vous propose une estimation gratuite et sans engagement de votre maison ou appartement. Maison rénovée en 2020 de ±250m² sur 13a60, 4/5ch, bureau, Terrasse, passage latéral, jardin, électricité aux normes. Comprenant: Sous-sol : caves Rez-de-chaussée : Hall d'entrée, Bureau, séjour, salle à manger, cuisine, wc séparé, Buanderie, salle de bains. Etage 1: Hall de nuit, 4 chambres, wc séparé. Etage 2: Grenier aménageable de +- 60 m² Divers : Châssis DV PVC, CCG, panneaux photovoltaïques. PEB C - EPS 179 Kwh/m².an - EP tot: 42.495 kWh/an ,- 30 kg CO2/m².an. RCNI: 896€ Prix: Faire offre à partir de 299.900,00€ sous réserve d'acceptation des propriétaires. Pour rappel, le pouvoir décisionnel appartient au vendeur. Ce dernier étant libre d'accepter ou de refuser n'importe quelle offre en cours à tout moment, quel que soit son montant, qu'elle soit la plus basse ou la plus élevée et quel que soit son ordre d'arrivée. Publicité à caractère non contractuel et ne constituant pas une offre
Type vastgoed Huis
Prijs 299.900
Bewoonbare opp. 250
Aantal slaapkamers 4
Aantal badkamers 1