Te koop Commerciële panden

Beschrijving van   

Vergelijk realty's

Te koop Commerciële panden

Commerciële panden Commerciële panden Commerciële panden Commerciële panden Commerciële panden Commerciële panden Commerciële panden Commerciële panden
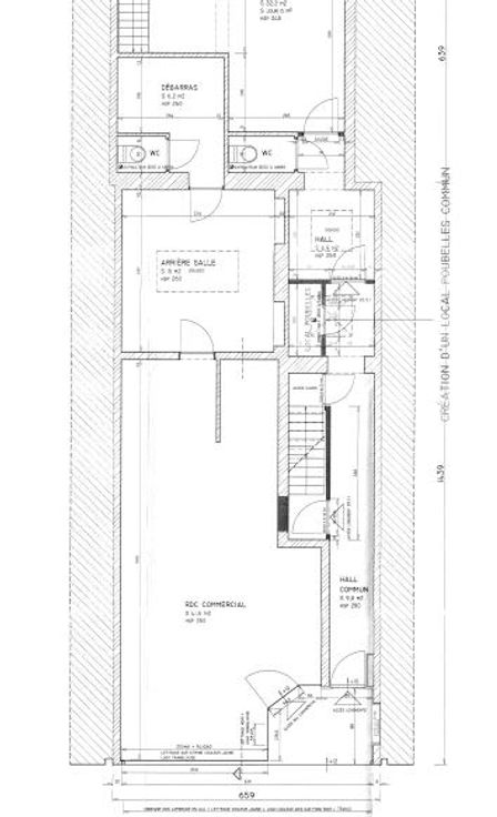
Rez-de-chaussée commercial d'environ 60 m², situé dans le centre de Jemeppe, dans la rue commerçante principale. Il se compose d'une pièce en façade d'environ 41,6 m², d'une pièce arrière de 15 m² et d'un débarras avec WC indépendant. Chauffage au gaz. Compteurs individuels. Bail commercial en cours - loyer de 550 €/mois (charges compteur électrique commun de 10€/mois à charge du locataire). L'immeuble fera l'objet d'un acte de base ; le revenu cadastral reste à déterminer. Visites sur demande auprès de l'étude.
Type vastgoed Commercieel
Prijs 79.000