Te koop Gebouw voor gemengd gebruik

Beschrijving van   

Vergelijk realty's

Te koop Gebouw voor gemengd gebruik

Gebouw voor gemengd gebruik Gebouw voor gemengd gebruik Gebouw voor gemengd gebruik Gebouw voor gemengd gebruik Gebouw voor gemengd gebruik Gebouw voor gemengd gebruik Gebouw voor gemengd gebruik Gebouw voor gemengd gebruik Gebouw voor gemengd gebruik Gebouw voor gemengd gebruik Gebouw voor gemengd gebruik Gebouw voor gemengd gebruik
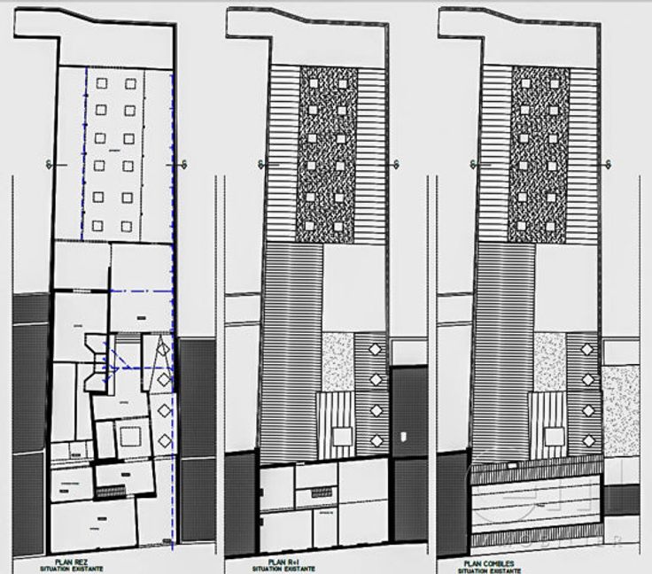
MOUSCRON Spacieuse maison commerce à rénover dans sa totalité, sur un terrain de 803m², disposant de grands espaces à aménager (possible d'en faire 2 à 3 habitations) aux nombreuses possibilités et accès par l'arrière, comprenant :  * Au rez-de-chaussée : Ancienne surface commerciale avec nombreuses annexes à l'arrière, en grande partie démolies, et offrant de beaux volumes, entrepôt ouvert sur la partie arrière avec accès latérale.  * A l'étage : Espaces à moduler pour en faire 4 à 6 chambres. * Particularités : Ancienne maison commerce , à rénover, aux nombreuses possibilités, beaux volumes aménageables en 2 à 3 habitations (voir plan), accès par l'arrière, relié au gaz de ville, belle surface commerciale à l'avant, possibilité de faire 4 à 6 chambres, PEB : F, RC : 1774€ 
Type vastgoed Huis
Prijs 185.000
Bewoonbare opp. 255
Aantal slaapkamers 6