Te koop Huis

Beschrijving van   

Vergelijk realty's

Te koop Huis

Huis Huis Huis Huis Huis Huis Huis Huis Huis Huis Huis Huis Huis Huis Huis Huis Huis Huis Huis Huis Huis Huis Huis Huis
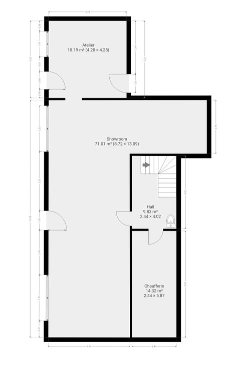
L'Atelier Immobilier vous présente une jolie maison de commerce idéalement située, sur un axe fréquenté, comprenant un rez commercial d'environ 90m² offrant une belle visibilité avec de larges vitrines et un parking aisé. Au premier étage (accessible via le commerce), un bel appartement duplex à parachever comprenant un salon, une salle à manger, une cuisine équipée, 2 chambres, une salle de douche, une salle de bain, un espace buanderie, un wc et une salle de jeu/bureau en mezzanine. Grand jardin exposé Ouest actuellement accessible via l'atelier du rez-de-chaussée, remises. Chauffage central gaz, double vitrage pvc, 20 panneaux photovoltaïques (2020). Un bien offrant de nombreuses possibilités d'aménagements à visiter sans tarder ! PEB B 154 kWh/m².an (cu 20240627001622). Faire offre à partir de 225.000€ (sous réserve d'acceptation des propriétaires). Informations et visites au 071/72.72.01.
Type vastgoed Huis
Prijs 225.000
Bewoonbare opp. 300
Aantal slaapkamers 2
Aantal badkamers 2