Te koop Appartement

Beschrijving van   

Vergelijk realty's

Te koop Appartement

Appartement Appartement Appartement Appartement Appartement Appartement Appartement Appartement Appartement Appartement Appartement Appartement Appartement Appartement Appartement Appartement Appartement Appartement
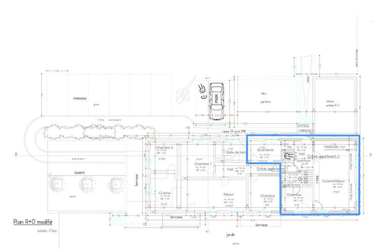
FAIRE OFFRE A PARTIR DE 200.000 € Sous réserve de l'acceptation par le propriétaire Idéalement situé à Marche-en-Famenne (Baillonville), en bordure de la Route du Condroz , Immo-Far vous présente une opportunité rare sur le marché, un appartement de style loft avec un étage aménageable en espace bureaux/commerce/ co-working de plus de 273 m². Cet appartement bénéficiant d’une entrée privative et d’un espace extérieur est composé d’un hall d’accueil avec wc indépendant, une remise, d’une pièce d’eau avec salle de douche et buanderie, une vaste pièce de séjour avec cuisine équipée et vestibule et d’une chambre. Le premier étage sous forme d’un open-space est à aménager en espace bureau, commerce, profession libérale est surtout modulable en fonction de vos projets. Ce bien fait partie d’une petite copropriété à en devenir de deux lots. Ne tardez pas, une visite s’impose. Dossier complet sur simple demande. Plus de détails sur www.immo-far.be Infos et visites: Tel: 0486/09 15 89 (7j/7)
Type vastgoed Appartement
Prijs 200.000
Bewoonbare opp. 273
Aantal slaapkamers 1