Te koop Bouwgrond voor HOB te koop in Sint-Margrie...

Beschrijving van   

Vergelijk realty's

Te koop Bouwgrond voor HOB te koop in Sint-Margriete-Houtem (Tienen)

Bouwgrond voor HOB te koop in Sint-Margriete-Houtem (Tienen) Bouwgrond voor HOB te koop in Sint-Margriete-Houtem (Tienen) Bouwgrond voor HOB te koop in Sint-Margriete-Houtem (Tienen) Bouwgrond voor HOB te koop in Sint-Margriete-Houtem (Tienen)
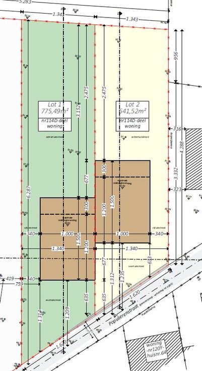
Twee bouwgronden voor half open bebouwing te koop in Sint-Margriete-Houtem. Beide bouwgronden zijn gelegen in een rustige doodlopende straat met uitzicht op agrarisch gebied en niet overstromingsgevoelig. Voor wie landelijk en rustig wil wonen maar toch dichtbij de faciliteiten die Tienen en Glabbeek te bieden hebben. De verkaveling voorziet twee halfopen bebouwingen met een zijtuinstrook van 3,4m, een gevelbreedte van 10m, een maximale bouwdiepte op het gelijkvloers van 15m en een maximale bouwdiepte op de eerste verdieping van 12m. De loten hebben een breedte van 13,4m op een lengte variërend van 42,88m tot 62,87m. Lot 1: 775,49m² - € 150 000 exclusief kosten Lot 2: 641,52m² - € 140 000 exclusief kosten Voor meer informatie, aarzel niet om contact op te nemen.
Type vastgoed Grond
Prijs 140.000