Te koop Handelszaak

Beschrijving van   

Vergelijk realty's

Te koop Handelszaak

Handelszaak Handelszaak Handelszaak Handelszaak Handelszaak Handelszaak Handelszaak Handelszaak
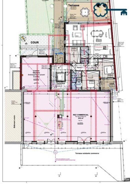
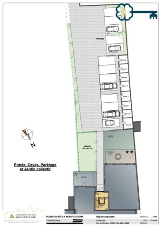
La clé des maisons vous propose ce rez commercial situé au coeur du village touristique de Han/Lesse. Il représente une opportunité unique pour les investisseurs. Avec une superficie généreuse de 232 m² complétée par une magnifique terrasse à l'avant de 94,50 m² et à l'arrière de 56 m², ce local est vendu CASCO, permettant une personnalisation complète selon vos besoins. Le prix de vente est fixé à 470 000 € hors TVA sous le régime de la TVA à 21%. Livré avec la cave n°8 et son carport muni de panneaux photovoltaïques non-inclus dans le prix (27 500€ HTVA). L'immeuble comprend également 5 appartements et 2 duplex, offrant une dynamique résidentielle à l'environnement commercial. Des emplacements de parking pour le commerce (max 4) sont disponibles en option, ajoutant ainsi une valeur supplémentaire. Possibilité de scinder le rez en 2 entités distinctes. Profitez de cette occasion exceptionnelle pour établir ou étendre votre présence dans un des sites les plus prisés de la région. Info et renseignements : Anne 0496/12 64 40. Documents téléchargeables sur : https://www.lacledesmaisons.be/fr/bien/a-vendre/commerce/5580-rochefort-hansur-lesse/5970568
Type vastgoed Commercieel
Prijs 470.000
Bewoonbare opp. 232