Te koop Appartement

Beschrijving van   

Vergelijk realty's

Te koop Appartement

Appartement Appartement Appartement Appartement Appartement Appartement Appartement Appartement Appartement Appartement Appartement
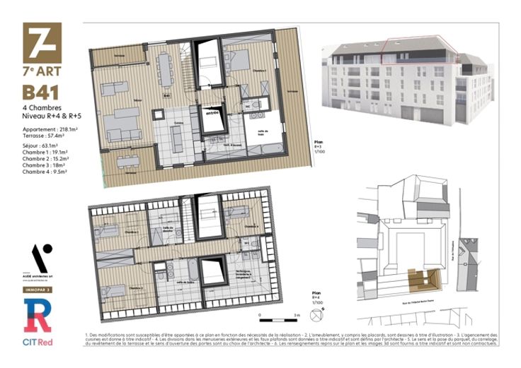
RESIDENCE 7ème ART Superbe penthouse sur 2 étages avec 4 chambres situé aux 4ème et 5ème étages, d'une superficie de 218,10 m², composé d'un hall d'entrée, spacieux séjour avec cuisine super équipée, buanderie, wc, 2 salles de bains 1 salle de douche, 4 chambres, et terrasses. Finitions haut de gamme et personnalisables (cuisine super équipée, sanitaires premium, parquet en chêne semi-massif…). Accès au patio central verdoyant et piscine naturelle. Possibilité de cave, parking et stationnement vélo en supplément. Peb projeté : A Livraison : 3ème trimestre 2024 Vente sous régime T.V.A. – Loi Breyne Bien référencé 5653907 Informations et rendez-vous en notre agence IMMO LECLERCQ - 069/891.891 - contact@immo-leclercq.com ou surfez sur www.immo-leclercq.com. Publicité à caractère non contractuel et ne constituant pas une offre. Les propriétaires se réservent le droit de décision, d’acceptation ou non sur toute(s) offre(s) soumise(s) pour leur bien.
Type vastgoed Appartement
Prijs 1.099.000
Bewoonbare opp. 218
Aantal slaapkamers 4
Aantal badkamers 3