Te koop Huis

Beschrijving van   

Vergelijk realty's

Te koop Huis

Huis Huis Huis Huis Huis
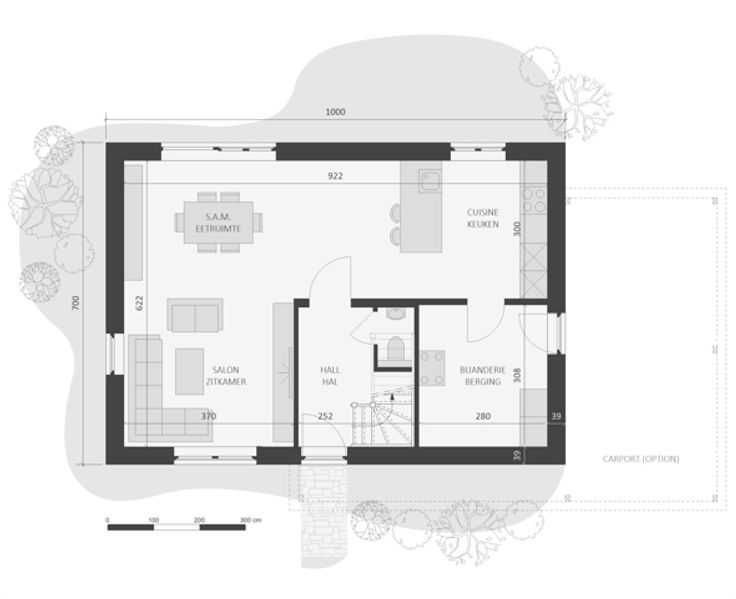
Projet de villa PEB A+ Qzen à consommation d'énergie quasi nulle 100% traditionnelle (triple vitrage, 14 panneaux solaires photovoltaïques, pompe à chaleur, chauffage sol, ventilation double flux avec récupérateur de chaleur, 14 cm d'isolation dans les murs, entre 22 et 44 cm d'isolation en toiture, 12 cm d'isolation dans le sol, ….) sur un terrain de 1074 m² exposé Ouest . La maison proposée se compose d'un beau salon salle à manger, d'une cuisine (non équipée), de 3 chambres (non mansardées), d'1 sdb (meuble compris), d'un dressing et d'une buanderie (carport en option). Nombreuses possibilités de personnaliser ou de modifier le projet ( possibilité d'agrandissement à petit prix). Grand choix de matériaux sans supplément. Finition clé sur porte en construction 100% traditionnelle avec cahier des charges très complet. Maison témoin à visiter 7 jours sur 7 sur rdv. Prix hors frais. Vente sous régime T.VA. et droit d'enregistrement. PEB exceptionnel. Prix total: 430.668€ ttc (prix fixe dans le contrat)( Comprenant: la T.V.A., les honoraires de l' architecte, une estimation de frais de raccordement, les frais de notaire et d'enregistrement sur le terrain, le bilan énergétique, une réserve de fondation, le coordinateur de sécurité, le sondage du terrain, l'étude de stabilité, le PEB, ...) Plus d'information www.teamconstruct.be ou 02/5564756
Type vastgoed Huis
Prijs 363.883
Bewoonbare opp. 140
Aantal slaapkamers 3
Aantal badkamers 1