Te koop Moderne nieuwbouw met villa allure

Beschrijving van   

Vergelijk realty's

Te koop Moderne nieuwbouw met villa allure

Moderne nieuwbouw met villa allure Moderne nieuwbouw met villa allure Moderne nieuwbouw met villa allure Moderne nieuwbouw met villa allure Moderne nieuwbouw met villa allure Moderne nieuwbouw met villa allure Moderne nieuwbouw met villa allure Moderne nieuwbouw met villa allure Moderne nieuwbouw met villa allure Moderne nieuwbouw met villa allure
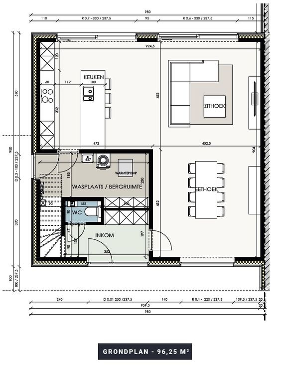
Deze energiezuinige halfopen moderne nieuwbouwwoning ligt op een heel mooi perceel van 586 m² in Meulebeke. Geniet van een open leefruimte met eethoek, salon en moderne keuken, waaruit je zicht hebt  op de tuin. Er is een aparte wasplaats/bergruimte aansluitend aan de keuken. Op elke verdieping is een apart toilet. Er zijn 3 slaapkamers waarvan 1 met dressing. De badkamer wordt voorzien van een dubbele wastafel, douche én bad. De auto kan onder de carport geplaatst worden. Er is een aangelegde voortuin en zongerichte tuin met terras. Deze stijlvolle woning biedt alle hedendaagse comfort en wordt verwarmd én gekoeld met geothermie. Er is dus een geothermische warmtepomp, zonnepanelen en vloerverwarming. De woning heeft een E-peil lager dan 20 en energielabel A. De afwerking kan na aankoop verder gepersonaliseerd worden. Hier krijg je dus de mogelijkheid om je droomwoning te realiseren. De getoonde prijs is excl. kosten. Bekijk de volledige berekende transparante all-in-prijs met o.a. notariskosten, aansluitkosten, btw, ... op www.dumobil.be/woonprojecten/meulebeke-steenstraat-kapellestraat. Of stel vrijblijvend al uw vragen aan bouwadviseur Sam: sam@dumobil.be | 0483 210 133   Renovatieplicht: NOT_APPLICABLE
Type vastgoed Huis
Prijs 502.500
Bewoonbare opp. 192
Aantal slaapkamers 3
Aantal badkamers 1