Te koop Villa

Beschrijving van   

Vergelijk realty's

Te koop Villa

Villa Villa Villa Villa Villa Villa Villa Villa Villa Villa
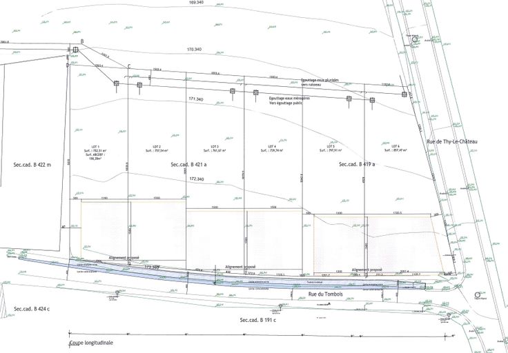
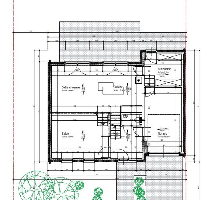
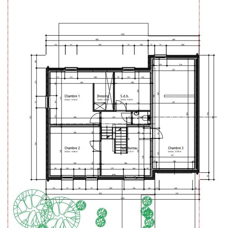
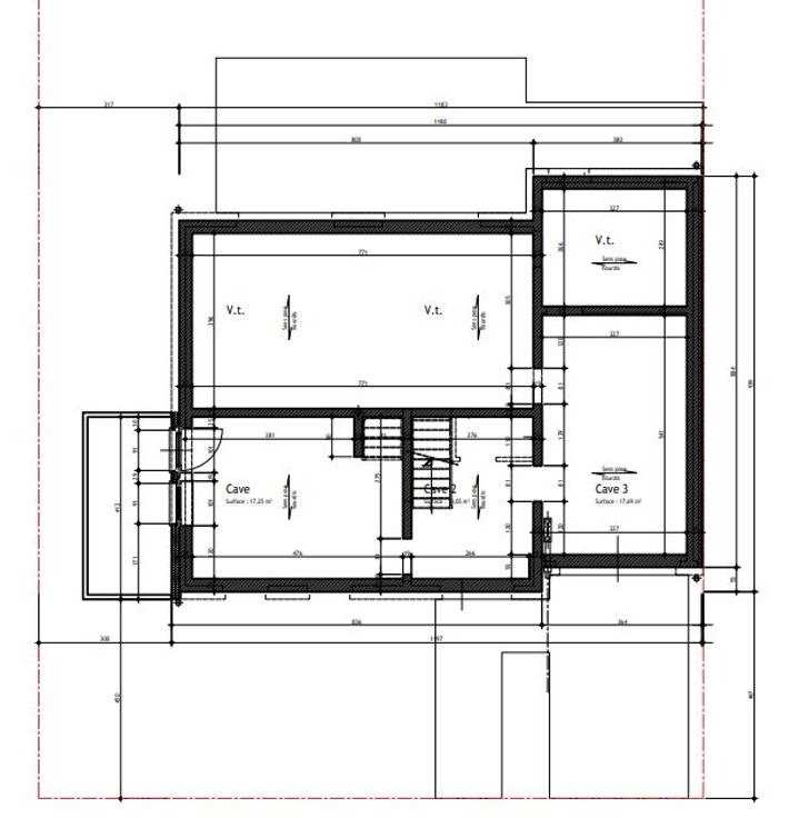
TERRAIN + VILLA à 5650 PRY LEZ WALCOURT rue du Tombois, lot n°5. Toutes les informations sur https://www.monterrain.be/maisons/Lot-5-a-5650-PRY-lez-WALCOURT-ref1 PRIX DU JOUR : TERRAIN + CONSTRUCTION = 235.258,43 € hors frais et TVA, soit 289.112,02 € TTC. Surface au sol de la maison : 106,00 m². Surface totale : 269,00 m². Hall, wc, salon, garage, living avec cuisine ouverte, 1 ch avec dressing, 2 autres chambres, espace caves aménageables en bureaux ou locaux professionnels avec accès par l'extérieur et l'intérieur. Situation campagnarde à l'entrée du village avec une vue arrière dégagée sur la campagne. Loisirs : proximité des lacs de l'Eau d'Heure. Shopping : centre commercial du Bultia à 10 km. Grands magasins à 2,50 km. https://www.monterrain.be/maisons/Lot-5-a-5650-PRY-lez-WALCOURT-ref1 Ou parlez-en avec QUENTIN au 0472/13.33.19.
Type vastgoed Huis
Prijs 235.258
Bewoonbare opp. 269
Aantal slaapkamers 3
Aantal badkamers 1