Te koop MODERNE NIEUWBOUWWONING met mooie TUIN én ...

Beschrijving van   

Vergelijk realty's

Te koop MODERNE NIEUWBOUWWONING met mooie TUIN én GARAGE!

MODERNE NIEUWBOUWWONING met mooie TUIN én GARAGE! MODERNE NIEUWBOUWWONING met mooie TUIN én GARAGE! MODERNE NIEUWBOUWWONING met mooie TUIN én GARAGE! MODERNE NIEUWBOUWWONING met mooie TUIN én GARAGE!
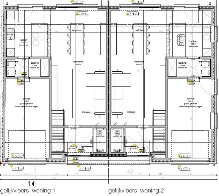
Deze MODERNE GEZINSWONING bevindt zich nabij de Spuikom tussen Bredene-Dorp en Bredene-Sas, dit op een perceel van 261m²! Deze woning heeft een ZEER OPTIMALE INDELING en is ALLES-OMVATTEND o.m. praktische garage, zeer ruime leefruimte, 3 mooie slaapkamers, ... Ook wordt deze woning standaard voorzien van VLOERVERWARMING en ZONNEPANELEN!  Deze gesloten nieuwbouwwoning wordt voorzien van een inkomhal met gastentoilet, lichtrijke woonkamer met zit- en eethoek, ingerichte open keuken met afzonderlijke berging, inpandige garage. De bovenverdieping heeft een nachthall, afzonderlijk toilet, berging, 3 mooie slaapkamers en ingerichte badkamer. Ook heeft u een RUIME zolder (53m²), ev. mogelijk tot het inrichten van extra kamers (mits plaatsen vaste trap). Als koper heeft u nog ruime keuze in de afwerking van uw woning!! BETAALBAAR WONEN!! Renovatieplicht: onbekend
Type vastgoed Huis
Prijs 332.000
Aantal slaapkamers 3
Aantal badkamers 1