Te koop Huis

Beschrijving van   

Vergelijk realty's

Te koop Huis

Huis Huis Huis Huis Huis Huis Huis Huis Huis Huis Huis Huis Huis
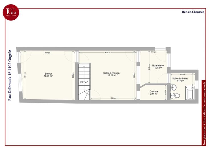
Maison trois façades à rénover entièrement située sur la commune d'Ougrée, Elle se compose au comme : Au RDC : un séjour, une salle à manger, un espace cuisine, une buanderie, une salle de bain. Au 1er : deux belles chambres. Au 2ième : un grenier aménageable en une troisième chambre. La maison dispose également d'une cave, d'un passage latéral et d'un jardin. Electricité à revoir totalement, châssis double vitrage PVC en partie, installation de chauffage centrale à prévoir ( le gaz est présent ), toiture à remplacer, PEB G. RC: 315€. Idéal comme 1er achat ou investissement. A visiter avant qu'il ne soit trop tard. Infos et visites : 0475/68 84 08 - 0489/84 99 99 ou contact@igg.immo
Type vastgoed Huis
Prijs Op aanvraag
Bewoonbare opp. 92
Aantal slaapkamers 2
Aantal badkamers 1