Te koop TOP LOCATIE Rustig gelegen bouwgrond voor ...

Beschrijving van   

Vergelijk realty's

Te koop TOP LOCATIE Rustig gelegen bouwgrond voor open bebouwing !!!

TOP LOCATIE Rustig gelegen bouwgrond voor open bebouwing !!! TOP LOCATIE Rustig gelegen bouwgrond voor open bebouwing !!! TOP LOCATIE Rustig gelegen bouwgrond voor open bebouwing !!! TOP LOCATIE Rustig gelegen bouwgrond voor open bebouwing !!! TOP LOCATIE Rustig gelegen bouwgrond voor open bebouwing !!!
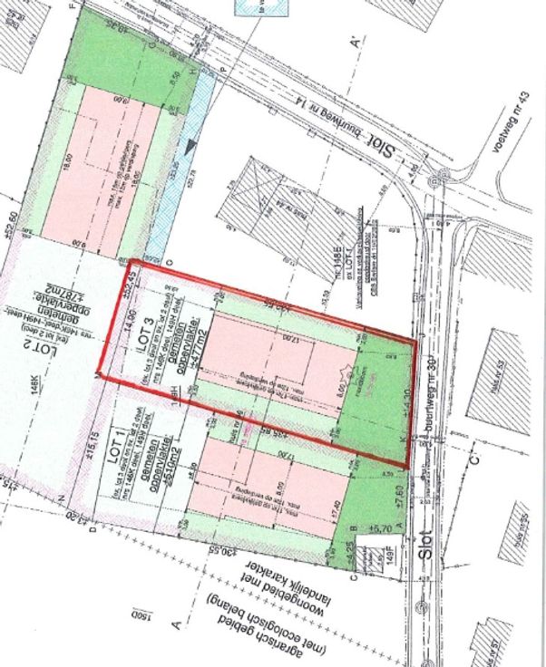
Voor wie houdt van rust .. deze bouwgrond gelegen in rustige wijk nabij scholen, winkels, openbaar vervoer,  ... met een oppervlakte van 477m². Wg, Vg, Gmo, Gvkr, Gvv, Pa, Ga  voor meer info www.immovanhoorick.be of 0487/184422 Renovatieplicht: onbekend
Type vastgoed Grond
Prijs 179.000