Te koop Magazijn

Beschrijving van   

Vergelijk realty's

Te koop Magazijn

Magazijn Magazijn Magazijn Magazijn Magazijn Magazijn Magazijn Magazijn Magazijn Magazijn Magazijn Magazijn Magazijn Magazijn Magazijn Magazijn Magazijn Magazijn
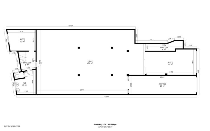
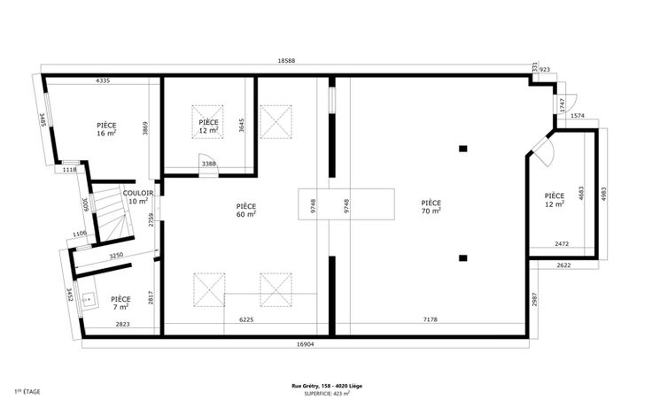
OPTION OPTION OPTION Solico vous propose cette entité commerciale d'une surface totale de 423m² répartie sur 3 niveaux. Située dans la Rue Gretry et actuellement à usage d'entrepôt, elle se compose comme suit: Entrée par une porte de garage menant à une grande surface de 183m² avec porte d'accès vers l'ascenseur, un bureau de 13m², une salle d'eau de 10m² et un hall avec l'escalier pour accéder à l'étage. L'étage est sur deux niveaux avec une rampe d'accès et une trappe, 2 bureaux, une pièce d'eau et une porte menant à l'ascenseur. Chauffage à installer. Châssis DV en Aluminium. 2 caves. RC 1971€ Visites et infos au 0472/55.02.72 ou au 04/222.31.32.
Type vastgoed Commercieel
Prijs Op aanvraag
Bewoonbare opp. 423