Te koop Huis

Beschrijving van   

Vergelijk realty's

Te koop Huis

Huis Huis Huis Huis Huis Huis Huis Huis Huis Huis Huis Huis Huis Huis Huis Huis Huis Huis Huis Huis Huis Huis Huis Huis Huis
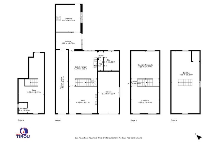
SOUS OPTION-Découvrez cette charmante maison 4 façades avec jardin, garage et passage latéral privé. La maison dispose d'un salon, d'une salle à manger, d'un wc séparé, d'une salle de bains, d'un espace cuisine, d'une chambre ou d'une cuisine. A l'étage 2 chambres avec grenier aménageable. À l'extérieur, jardin, passage latéral, garage. Située à proximité de nombreuses commodités, cette maison est un véritable atout. Enfin, pour votre plus grand confort, la maison est équipée de volets électriques au rez-de-chaussée, d'une chaudière à mazout, d'une citerne d'eau de pluie. Ne manquez pas cette opportunité de vivre dans une maison chaleureuse et bien située avec un espace de vie bien agencée. INFOS et VISITES via le 071/58.50.50 - info@immotirou.be. Pour touts renseignements www.immotirou.be
Type vastgoed Huis
Prijs 145.000
Bewoonbare opp. 129
Aantal slaapkamers 2
Aantal badkamers 1