Te koop Bouwgrond

Beschrijving van   

Vergelijk realty's

Te koop Bouwgrond

Bouwgrond Bouwgrond Bouwgrond Bouwgrond Bouwgrond Bouwgrond Bouwgrond Bouwgrond Bouwgrond
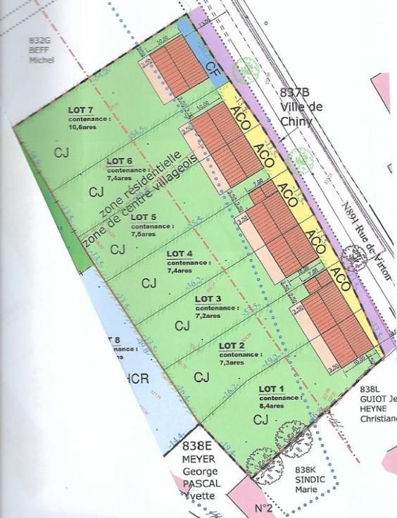
Terrains à vendre à Valansart Saisissez l'opportunité de faire l'acquisition d'un beau terrain à bâtir dans le joli village de Valansart. Nous proposons à la vente 7 terrains d'une contenance allant de 7 ares 29 centiares (7a 29ca) à 10 ares 69 centiares (10a 69ca) destinés à la construction de maisons semi mitoyennes (lots 1,2,3,4,5,6) situées dans une zone de centre villageois et d'une maison quatre façades (lot 7), située dans une zone résidentielle. Caractéristiques principales : • Environnement Résidentiel : Lots 1,2,3,4,5,6 permettent la construction de maisons 3 façades jumelées et le Lot 7 permet la construction d'une maison 4 façades. A savoir que tous les terrains sont entièrement viabilisés. • Situation Géographique : A seulement 9km de Florenville et à proximité de commerces, restaurants et de toutes facilités. Ces terrains situés dans un environnement calme et verdoyant se situent à environ 125m de l'arrêt de bus TEC, 500m de l'école fondamentale, à 3km de l'école secondaire de l'Athénée d'Izel, à 18 km de l'autoroute d'Habay. Ces terrains sont idéaux pour ceux qui cherchent à construire dans un lieu offrant à la fois tranquillité et proximité des services essentiels. Faire offre à partir de : Pour le lot 1 : SOIXANTE MILLE EUROS (60.000,00 €). Pour le lot 2 : CINQUANTE ET UN MILLE CINQ CENT EUROS (51.500,00 €). Pour le lot 3 : CINQUANTE ET UN MILLE CINQ CENT EUROS (51.500,00 €). Pour le lot 4 : CINQUANTE DEUX MILLE EUROS (52.000,00 €). Pour le lot 5 : CINQUANTE
Type vastgoed Grond
Prijs 51.500