Te koop Nieuw te bouwen woning te Lokeren

Beschrijving van   

Vergelijk realty's

Te koop Nieuw te bouwen woning te Lokeren

Nieuw te bouwen woning te Lokeren Nieuw te bouwen woning te Lokeren Nieuw te bouwen woning te Lokeren Nieuw te bouwen woning te Lokeren
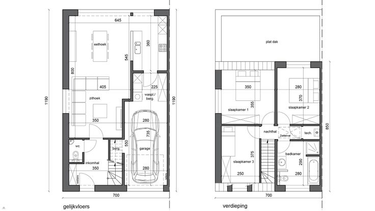
Nieuw te bouwen halfopen bebouwing te Lokeren.  Voorbeeldwoning: indeling vrij te kiezen. Onze woningen worden afgewerkt met standaard duurzame kwalitatieve materialen waarvoor ruime budgetten worden voorzien. Als bouwheer heeft u volledige inspraak gaande van bouwstijl, materialen en afwerking.  Zo kunnen we u steeds een perfect beeld geven van de kostprijs rekening houdend met uw vooropgestelde budget Prijs grond met voorgestelde voorbeeldwoning incl. btw, registratierechten, architectenereloon, EPB, veiligheidcoördinatie, blowerdoortest, en keuring riolering. Ventilatiesysteem D met warmterecuperatie Zonnepanelen voorzien in de prijs, volgens voorstudie EPB-verslag Woning vrij te kiezen na afspraak met architect. Meer info en lastenboek zijn te verkrijgen op kantoor of bij afspraak. Aarzel niet ons te contacteren. Bouwen met meerwaarde doe je met NB-Projects ______   Renovatieplicht: onbekend
Type vastgoed Huis
Prijs 561.794
Bewoonbare opp. 166
Aantal slaapkamers 3
Aantal badkamers 1