Te koop Huis

Beschrijving van   

Vergelijk realty's

Te koop Huis

Huis Huis Huis Huis Huis Huis Huis Huis Huis Huis
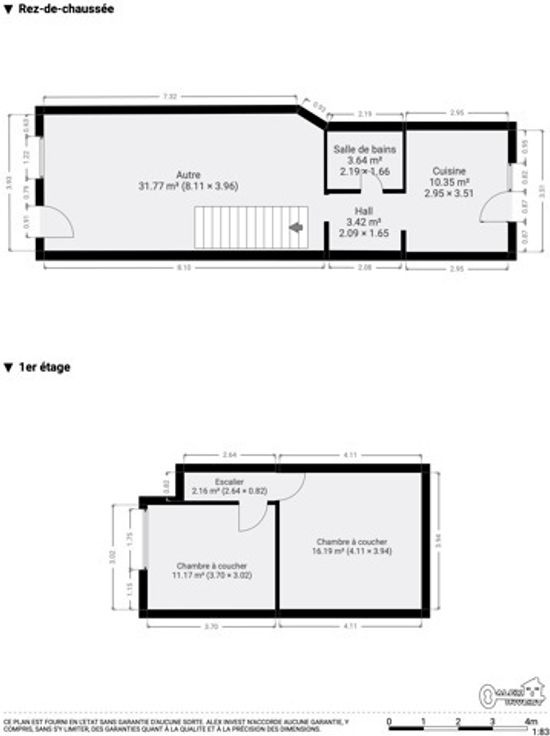
Huis met een bewoonbare oppervlakte van +/- 97m2, gelegen in de buurt van alle voorzieningen. Het is als volgt samengesteld: GELIJKVLOERS: Grote woonkamer van +/- 32m2, half uitgeruste keuken met eetruimte, en doucheruimte met toilet. 1e VERDIEPING: Nachthal en 2 slaapkamers (+/- 16 en 11m2). KELDER, TERRAS en TUIN. Dubbele beglazing in gemengde ramen, Centrale verwarming op gas. Biedingen vanaf €65.000, onder voorbehoud van goedkeuring door de eigenaars. Niet te missen!
Type vastgoed Huis
Prijs Op aanvraag
Bewoonbare opp. 97
Aantal slaapkamers 2
Aantal badkamers 1