Te koop Zeer landelijk gelegen VILLABOUWGROND MET ...

Beschrijving van   

Vergelijk realty's

Te koop Zeer landelijk gelegen VILLABOUWGROND MET TUIN OP HET ZO !

Zeer landelijk gelegen VILLABOUWGROND MET TUIN OP HET ZO ! Zeer landelijk gelegen VILLABOUWGROND MET TUIN OP HET ZO ! Zeer landelijk gelegen VILLABOUWGROND MET TUIN OP HET ZO ! Zeer landelijk gelegen VILLABOUWGROND MET TUIN OP HET ZO !
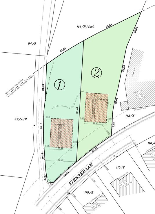
Zeer landelijk gelegen VILLABOUWGROND (lot 2) met een oppervlakte van 12,58 are en een wijds vergezicht op de weilanden en akkers. Met een straatbreedte van 22,83m en een zuidoost georiênteerde tuin, is deze bouwgrond een opportuniteit. Er is geen bouwverplichting! De maximale bewoonbare oppervlakte voor een nieuwbouw woning bedraagt 308m² (+ ev. zolder en kelder), de maximale bebouwde grondoppervlakte van een nieuwbouw woning is 171,15 m². Bouwvoorschriften : de woning moet ingeplant worden op 12m uit de as van de weg en op min. 3m van de zijdelingse perceelsgrenzen, de dakvorm is vrij van keuze. Complementaire bedrijvigheid is eveneens toegestaan tot max 100m². Plan in pdf vindt u op www.cdsimmo.be onder 'downloads'. VP 249.000 EUR. Voor meer informatie bel op 016/620105 of mail naar info@cdsimmo.be. Renovatieplicht: onbekend
Type vastgoed Grond
Prijs 249.000