Te koop Bouwgrond

Beschrijving van   

Vergelijk realty's

Te koop Bouwgrond

Bouwgrond Bouwgrond Bouwgrond Bouwgrond
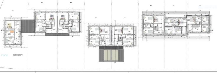
En quête d'opportunités, venez découvrir ce terrain situé dans la petite commune de Braives. Au calme mais proche des autoroutes. Un permis a été accordé pour la construction de 8 maisons ( 07/2026). Atouts du terrain : plat, boisé , endroit très prisé par les navetteurs. Le projet est prêt à construire : vérification implantation, étude de sol , ect ... Renseignements et visites 0473/802021 Agence s'abstenir
Type vastgoed Grond
Prijs 475.000