Te huur Licht en ruim appartement

Beschrijving van   

Vergelijk realty's

Te huur Licht en ruim appartement

Licht en ruim appartement Licht en ruim appartement Licht en ruim appartement Licht en ruim appartement Licht en ruim appartement Licht en ruim appartement Licht en ruim appartement Licht en ruim appartement Licht en ruim appartement Licht en ruim appartement Licht en ruim appartement Licht en ruim appartement Licht en ruim appartement
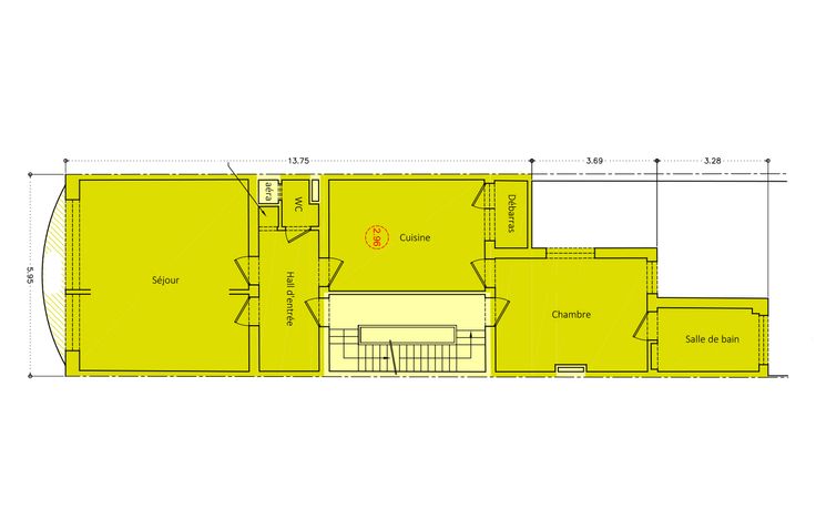
Te huur vanaf 1 November 2024. Lichtrijk appartement met één slaapkamer in Vorst. Het appartement van 80m2 heeft een ruime inkomhal, een open woonkamer en een grote, uitgeruste keuken met een terrasje. De rustige slaapkamer aan de achterkant is gelinkt aan de badkamer met ligbad, douche en dubbele wastafel. Het appartement ligt in een rustige straat tussen het Wiels en het Dudenpark vlakbij openbaar vervoer. Het appartement werd volledig gerenoveerd in 2017 met een nieuwe boiler and achtergevel isolatie in 2024. Maandelijkse huurprijs bedraagt 950 euro + 100 euro provisie voor water, verwarming en gemeenschappelijke kosten.
Type vastgoed Appartement
Prijs 950
Bewoonbare opp. 80
Aantal slaapkamers 1
Aantal badkamers 1