Te koop Nieuw te bouwen alleenstaande woning te Zw...

Beschrijving van   

Vergelijk realty's

Te koop Nieuw te bouwen alleenstaande woning te Zwevegem.

Nieuw te bouwen alleenstaande woning te Zwevegem. Nieuw te bouwen alleenstaande woning te Zwevegem. Nieuw te bouwen alleenstaande woning te Zwevegem.
Wist je dat wij je richting geven met onze voorbeeldwoningen, maar dat je alles nog kan veranderen naargelang stijl en eigen wens? Naast de esthetische, architecturale kant geven wij je ook kennis mee van het hedendaagse wooncomfort. Want Your Home, dat is samen bouwen. Wil je graag alles eens persoonlijk overlopen? Neem gerust eens contact op met ons. Wij helpen je graag verder. Mail naar aanvraag@yourhome.be of bel 056 755 788 Tip: Bezoek onze Kijkwoning na afspraak (zie www.yourhome.be/kijkwoning).
Type vastgoed Huis
Prijs 652.717
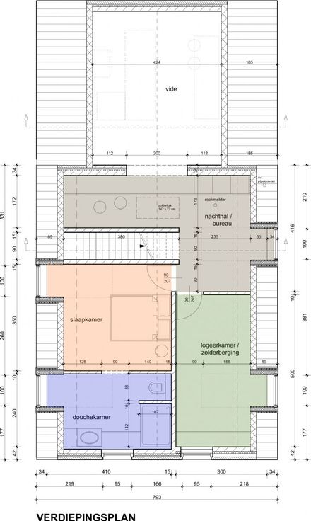
Bewoonbare opp. 243
Aantal slaapkamers 3